Stenyxegatan 34
Fosie, Malmö, 182 m2
Anpassningsbar kontorslokal med gott om parkeringsplatser och närhet till stort serviceutbud i expansiva Fosie Lättillgänglig fastighet som innefattar lokaler för...
Dokument
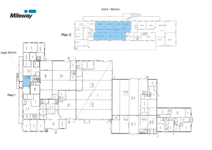
Båtyxan 1- planritning.pdfKontor/Lager, 152 m2, Malmö, Fosie
Hyra: Kontakta annonsören
Nu finns möjlighet att hyra en flexibel kontorslokal om 152 kvm i en lager- och kontorsfastighet. Kontoret ligger på plan två (hiss finns) och lagret på markplan för smidig hantering av varor. Lokalen kommer att totalrenoveras i samråd med ny hyresgäst, vilket ger unika möjligheter att anpassa planlösning, materialval och kök/pentry efter just era behov. Byggnaden ligger på inhägnat område och det erbjuds fri parkering i anslutning till lokalerna.
Fosie ligger cirka 10 kilometer sydost om centrala Malmö. Det ligger strategiskt placerat direkt intill de viktiga transportlänkarna E6, E65 och Inre Ringvägen med snabb access in och ut ur Malmö. Området präglas delvis av verkstäder men även av blandad företagsverksamhet inom lättindustri och handel. Jägerso Center finns inom nära räckhåll med stort serviceutbud av butiker och restauranger. Det finns goda kollektivtrafikförbindelser med buss till centrala Malmö.
EKO, Scanfil, ABB, Office Depot, Byggmax, Ahlsell, ZooGiganten och Bilgalaxen
Parkeringsmöjligheter/garage:Gott om parkeringsplatser på fastigheten (fri parkering)
Vägbeskrivning:Direkt anslutning till E6, E65 och Inre Ringvägen
Båtyxan 1
Byggår:1969
Våningsplan:2 av 2
Planlösning:Se planritning bland bilder eller ladda ned PDF.
Goda kollektivtrafikförbindelser med buss till centrala Malmö
Jägerso Center finns inom nära räckhåll med stort serviceutbud av butiker och restauranger
2,4 m
Lokalen kan nås via:Trapphus med hiss
Hiss:Ja
Kontraktlängd:Förhandlingsbart
Kontrakttyp:Förstahandskontrakt
Tillträde:Omgående