Industrigatan 12

Lager, 1782 m2, Malmö, Värnhem

Hyra: Kontakta annonsören

Citylager med bra höjd och stora portar!
Unik möjlighet att hyra lager av riktigt hög kvalitet i centrala Malmö.

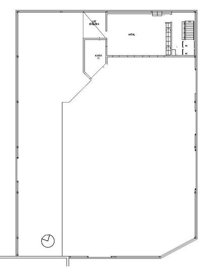
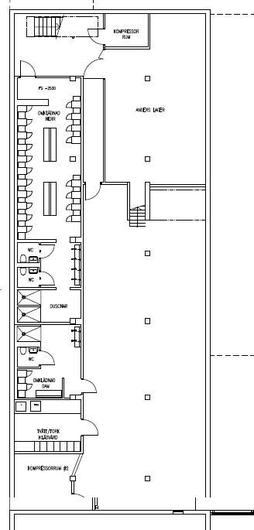
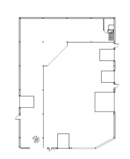
Lokalen om totalt ca 1782 kvm fördelar sig över två hallar om 750- repsektive 360 kvm samt entrésolplan om ca 312 kvm och källare om ca 360 kvm innehållande bl a nyrenoverade personalutrymmen.
Byggnaden nås från 3 håll. Industrigatan, Nobelvägen och Celsiusgatan.
Inlastning sker via stora portar både från lastkaj och i markplan. Den stora markporten är 5x5 m och övriga portar är ca 3,5x3,7m
Fri höjd under balk är 6,4m.
Nockhöjd 8m.
Höjd under entrésol: 3,1 m
Travers (2 ton) finns.
Lokalen är tekniskt välutrustad med bra ventilation och värmesystem och är i väldigt gott skick. Fina personalytor, helkalkade omklädnings- och badrum i nyskick.
Gott om uppställningsyta på inhägnad område.

Hyresvillkor:
ca 1000 kr/kvm och år kallhyra
Avtalstid 3-5 år med avstående från besittningsskydd.

Planlösning

Fastighetsbeteckning:

Smedjan 9

Kontakta Annonsör

Anders Hedenskog

Anders Hedenskog