Höjdrodergatan 4
Bulltofta, Malmö, 210 m2
Kontorslokal i precis bredvid Inre Ringvägen! Rymlig och välplanerad lokal till uthyrning nära Inre Ringvägen. Lokalen består av 11 kontorsrum...
Butik/Kontor/Lager, 1330 m2, Malmö, Bulltofta
Hyra: Kontakta annonsören
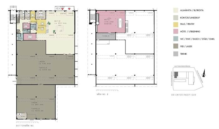
Lokalen
Välkomna att etablera er verksamhet i ett proffsigt läge. Här erbjuder vi en butikslokal med fantastiskt säljläge för er och era bilburna kunder. Som närmsta granne har ni proffsbutikerna Centro kakel och klinker samt Caparol färg. Lokalen ligger med omedelbar närhet till Inre Ringvägen.
Lokalen är uppdelad i butik/showroom, kontor och lager. En del av ytan har ett trevligt och ljust entrésolplan med generöst stora utrymmen. Ytan är optimal för event eller utbildningar eller som ett stort härligt personalutrymme. I anslutning till butiksdelen finns en härlig loungeyta tillsammans med kontor- och mötesrum.
Lagerytan är ljus med takfönster och det finns tillgång till markport (bredd ca 4,3 m och höjd ca 2,5 m). Den totala lagerytan är ca 750 kvm med en takhöjd om ca 4,2 m. I anslutning till lagerdelen finns omklädning med duschmöjligheter.
Största fördelarna:
Kontakta oss gärna för mer information eller för att boka visning.
Området
Bulltofta ligger i stadsdelen Kirseberg i Malmö med gröna omgivningar och promenadstråk såsom Beijers park samt Bulltofta rekreationsområde. I området finns väletablerade lunchrestauranger, hotell, golfbana och serviceverksamheter i form av massage och kiropraktik. Här hittar du också matbutiken Coop och bank.
Kommunikationer
Med närhet till inre och yttre ringväg skapas goda kommunikationsmöjligheter. Inom gångavstånd finns bussförbindelser mot centrala Malmö.
Parkering
Finns inhägnad parkering i direkt anslutning till fastigheten.
Enligt överenskommelse
I hyran ingår:Värme, skatt