Dokument

Ritning - Mileway - Sadelgjorden 1 Malmö.pdf

Galoppgatan 4

Industri/Kontor/Lager, 1877 m2, Malmö, Elisedal

Hyra: Kontakta annonsören

Flexibel lagerlokal med lastkaj och uppställningsyta - På bästa läge i Elisedal

Nu finns möjlighet att hyra enflexibel lageryta om 1 877 kvmmed generös takhöjd ochstor tillhörande markyta om ca 2 500 kvm. Lokalen erbjudergoda anpassningsmöjligheter och skräddarsys i nära dialog med ny hyresgästför att möta specifika verksamhetsbehov. Det finns möjlighet att skapa exempelvis showroom, kundentré eller kontorsdel i direkt anslutning till lagret.

Lokalen passar utmärkt förverksamheter inom lager, logistik, distribution, produktion eller grossistverksamhet- särskilt för aktörer med behov av god tillgänglighet, generösa ytor och egen uppställningsyta eller många parkeringsplatser.

Planerade förbättringar i samråd med hyresgäst:


  • Ny, representativ entré


  • Installation av markportför smidig in-/utlastning


  • Ledig markyta görs om till parkeringsplatser för personbilar


Lokalens höjdpunkter


  • 1 877 kvm lager med ca 5,5 meters takhöjd


  • Lastkaj med port, ny markport planeras


  • Inhägnad markyta om ca 2 500 kvm


  • Hög flexibilitet - utformning och funktion i dialog med hyresgäst


Området - Elisedal, Malmö

Fastigheten ligger i Elisedal, cirka 10 km sydost om centrala Malmö, med direkt access till E6, E65 och Inre Ringvägen. Området präglas av lättindustri, verkstäder och handel.Jägersro Centermed restauranger och butiker finns i närheten.Goda bussförbindelsertill centrala Malmö.

Omgivning

Företag i närheten:

Tiles R Us, Täta Tak Entreprenad, Interni Kakelstudio, ZooGiganten och Bilgalaxen

Parkeringsmöjligheter/garage:

Fri parkering

Vägbeskrivning:

Direkt anslutning till E6, E65 och Inre Ringvägen

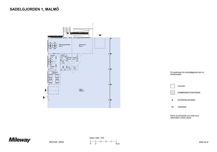
Planlösning

Fastighetsbeteckning:

Sadelgjorden 1(2)

Byggår:

1977

Renoveringsår:

2025

Planlösning:

Se planritning bland bilder/PDF.

Kommunikationer

Goda kollektivtrafikförbindelser med buss till centrala Malmö

Service

Närservice:

Jägerso Center finns inom nära räckhåll med stort serviceutbud av butiker och restauranger

Övrigt

Takhöjd:

5,5 m

Lokalen kan nås via:

Lastkaj 1 port samt möjlighet att installera en markport i enheten om 1 877 kvm

Kontraktlängd:

Förhandlingsbart

Kontrakttyp:

Förstahandskontrakt

Tillträde:

Omgående

Kontakta Annonsör

Jennie Hansen

Jennie Hansen