Lodgatan 19
Hamnen - övrigt, Malmö, 125 m2
Kontorslokal i fräscht skick med goda möjligheter till anpassning samt möjlighet att hyra till uppställningsyta Ledig kontorslokal om 125 kvm...
Dokument
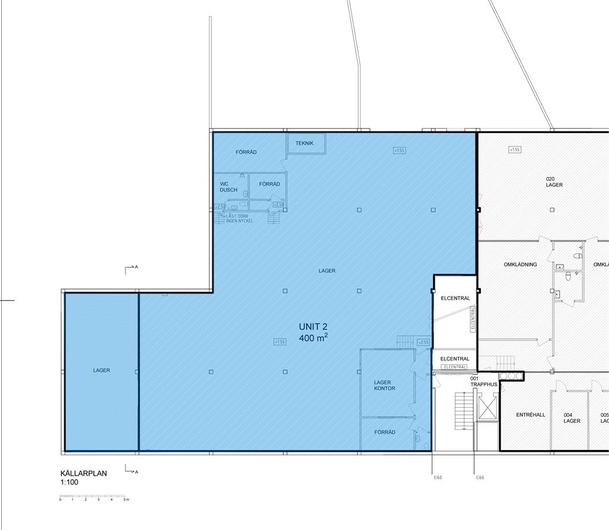
Källarplan_Unit 2_Lager.pdfIndustri/Lager/Övrigt, 400 m2, Malmö, Hamnen - övrigt
Hyra: Kontakta annonsören
Industrifastighet med ledig lager-/verkstadslokal om 400 kvm. Lokalen är belägen på källarplan och erbjuder en egen markport samt faciliteter i form av pentry och WC. Fastigheten är delvis inhägnad och har öppna rangerytor samt parkeringsplatser som kan hyras via tilläggsavtal.
Östra Hamnen är ett utbrett och väletablerat industriområde på centralt läge vid stadens norra infartsleder, endast 3 kilometer norr om centrala Malmö. Här finns goda transportförbindelser via Västkustvägen vidare till Inre Ringvägen, E6/E20 och E22. Området präglas av lättindustri samt lager- och logistikverksamheter och det erbjuds ett enklare serviceutbud av handel och lunchrestauranger. Det finns goda kollektivtrafikförbindelser med buss till centrala Malmö.
Mygel, Cargobike of Sweden, INR Försäljning Sverige AB, Bluebox.se, Exakta Print AB och Bring
Parkeringsmöjligheter/garage:Parkeringsplatser finns att hyra mot tilläggsavtal
Vägbeskrivning:Direkt anslutning till Västkustvägen som leder till Inre Ringvägen, E6/E20 och E22
Flintan 3
Byggår:1963
Planlösning:Se planritning bland bilder eller ladda ned PDF.
Goda kollektivtrafikförbindelser med buss till centrala Malmö, busshållsplats precis utanför byggnaden
Enklare serviceutbud av handel och lunchrestauranger i närområdet, t.ex. restaurangen Mygel som ligger precis runt hörnet
En markport
Kontraktlängd:Förhandlingsbart
Kontrakttyp:Förstahandskontrakt
Tillträde:Omgående