Grossistgatan 5
Jönköping, 655 m2
Kombinerad lager- och kontorslokal om totalt 655 kvm. Kontoret om ca 384 kvm har både enskilda kontorsrum och delvis öppen...
Industri/Kontor/Lager, 2401 m2, Jönköping
Hyra: Kontakta annonsören
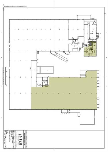
Välkomna till Kindgrensgatan 15, där vi nu har en hyresledig lagerlokal om ca 2401 kvm med ett tillhörande kontor om ca 167 kvm. Lagerlokalen passar utmärkt för exempelvis E-handel eller omlastning då den har ca 10 portar (lastkaj, småbilskaj och markportar) och har en takhöjd mellan 4-5 meter. Lokalen har även ett utmärkt skyltläge intill korsningen E4/Riksväg 40. Välkomna att kontakta oss för visning eller ytterligare info!
Haga ligger söder om Jönköping och är en attraktiv etablering för företagare.
Parkeringsmöjligheter/garage:Parkering finns i direkt anslutning till fastigheten.
Haga ligger ca 10 minuter med bil från centrala Jönköping invid Riksväg 40. På några minuter når man ut till trafikplats Ljungarum och väg E4.
Emilshus erbjuder lokalt baserad förvaltning. Vi finns alltid nära tillhands när det behövs och delar gärna med oss av vårt breda kunnande inom lokal- och fastighetsfrågor. Vi har lokal närvaro och engagemang för din verksamhet. Tillsammans hittar vi kreativa lösningar för att göra din arbetsplats så bra som möjligt. Du som kund är alltid i vårt fokus.
Tillträde:Enligt överenskommelse