Knut Påls väg 7
Långeberga, Helsingborg, 2245 - 15100 m2
Optimal logistiklokal för grönsaks- och livsmedelsgrossister i Långeberga, Helsingborg. Välkommen till denna logistik- och lagerfastighet om totalt15 100 kvm, medflexibel...
Dokument
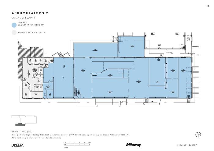
Planritning - Ackumulatorn 2&8Industri/Kontor/Lager, 3535 m2, Helsingborg, Långeberga
Hyra: Kontakta annonsören
Välkommen till enrymlig och flexibellagerlokal omtotalt3 535 kvmmedmöjlighet att anpassa ytorna helt efter era behov. Lokalen har ettstrategiskt läge precis intill E6, vilket ger utmärkta förutsättningar för logistik, distribution och produktion.
Här finnsmöjlighet att öppna upp väggar och skapa större sammanhängande lager- och produktionsytor- perfekt för verksamheter som behöver en skräddarsydd lösning med effektiva flöden. De generösa rangeringsytorna utanför bidrar till smidig logistik och enkel hantering av gods.
Om lokalen:
Total lagerytaom ca 2 585 kvm
Fem lasthusför effektiv in- och urlastning
Möjlighet till kyllager
Kontorsutrymmen om ca 950 kvmpå två plan med flera mötesrum och pausytor
Facilitetersom kök, omklädningsrum, dusch, WC och förråd
40 parkeringsplatseri direkt anslutning till kontorsdelen
Lokalen lämpar sig för företag inom lager, logistik, lätt produktion eller livsmedelshantering - med möjlighet attforma ytan efter verksamhetens behov.
Strategiskt läge i Långeberga
Långeberga är ett mindre industriområde som ligger precis intill E6 cirka 6 kilometer öster om centrala Helsingborg. Området erbjuder optimala etableringsmöjligheter till olika aktörer inom lager och logistik. Närservice med butiker, restaurang och andra tjänster hittas närmast i närliggande Ramlösa. Det finns goda kollektivtrafikförbindelser med buss till centrala Helsingborg.
Ta chansen att etablera er verksamhet i en lokal som kombinerar hög funktionalitet med ett oslagbart läge för logistik och produktion!
ICA Sverige AB, Nowaste Logistics, Everfresh AB, Eimskip Logistics AB och Kartongbolaget i Helsingborg AB
Parkeringsmöjligheter/garage:Stor parkering
Vägbeskrivning:Direkt anslutning till E6
Ackumulatorn 2&8
Byggår:1987
Våningsplan:1 av 2
Planlösning:Se nedladdningsbar PDF-bilaga nedan samt bland bilder.
Bra kollektivtrafikförbindelser med buss till centrala Helsingborg
Nära till Ramlösa med närservice såsom butiker, restauranger och andra tjänster
6 m
Lokalen kan nås via:5 lasthus
Kontraktlängd:Förhandlingsbart
Kontrakttyp:Förstahandskontrakt
Tillträde:Omgående.