Järnmalmsgatan 1

Industri/Kontor/Lager, 1955 m2, Göteborg, Hisingen

Hyra: Ej angiven

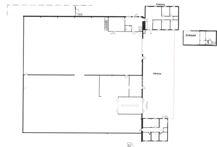
Nu kan vi erbjuda ett väldigt fint lager med tillhörande kontor. Till lagret finns det två markportar. Den största är 5 m hög och 5,5 m bred. Takhöjden är 5 m till balk och nån meter ytterligare till tak. Av lokalens totalt 1955 kvm är cirka 150 kvm kontor.

Det ingår fem parkeringsplatser till lokalen. Man kan även hyra till ytterligare platser för 400kr per plats och månad. Vill man ha ytterligare parkering kan man även använda sig av uppställningsytan intill fastigheten.

Ringön är ett område med många olika verksamheter. Här finns lokala mikrobryggerier dörr i dörr med stora logistikfastigheter. Fastigheten ligger längst med havet så varför inte avnjuta lunchen på bryggan?

Med närhet till alla dom stora lederna så som E6 och E45 kan du enkelt ta dig till och från fastigheten utan några som helst problem.

Omgivning

Ringön är ett område med många olika verksamheter. Här finns lokala mikrobryggerier dörr i dörr med stora logistikfastigheter. Fastigheten ligger längst med havet så varför inte avnjuta lunchen på bryggan?

Kommunikationer

Med närhet till alla dom stora lederna så som E6 och E45 kan du enkelt ta dig till och från fastigheten utan några som helst problem.

Övrigt

Parkering

Ja

Skyltläge

Nej

Kontakta Annonsör

Rikard Reutherborg

Rikard Reutherborg