Exportgatan 7B

Kontor/Lager, 340 m2, Göteborg, Hisings-Backa

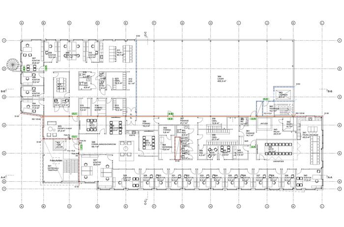
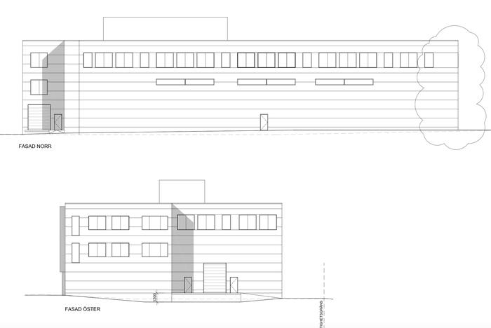
Här har ni möjlighet att vara med och skapa ert nya unika kontor om ca 340 kvm. Lokalen har en bra takhöjd med generösa glaspartier som ger ett fantastiskt ljusinsläpp. Vi hjälper er med planlösningen så att den matchar era specifika behov. Lokalen är belägen högst upp i huset och har hiss.

En unik möjlighet för er som vill skapa något unikt.

Fördelar med lokalen:
Ljus och rymd: Stora glaspartier och hög takhöjd för en luftig känsla.

Anpassningsbar: Planlösningen kan utformas efter era önskemål.

Läge: Bra läge med närhet ut till E6

En möjlighet för er som vill skapa något personligt och anpassat för er verksamhet. Kontakta oss för mer information eller för att boka en visning.

Omgivning

Backa industriområde på Hisingen, Göteborg - där framgång möter strategiskt läge. Med sin imponerande infrastruktur och närhet till hamnen och motorvägar är Backa det perfekta valet för företag som strävar efter effektivitet.

Kommunikationer

Ligger utmed E6:an vilket gör det enkelt att ta sig hit. Har du inte bil finns det goda förbindelser med kollektivtrafiken som tar dig in till Göteborg Central på ca 30 min.

Övrigt

Parkering

Ja

Skyltläge

Nej

Kontakta Annonsör

Rikard Reutherborg

Rikard Reutherborg