Dokument

Planritning -Mileway - Backa 27-43 Göteborg.pdf

Backa bergögata 7

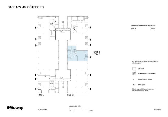
Industri/Kontor/Lager, 274 m2, Göteborg, Backadal

Hyra: Kontakta annonsören

Praktisk kombilokal i gott skick med trevliga kontorsytor och lager med markport

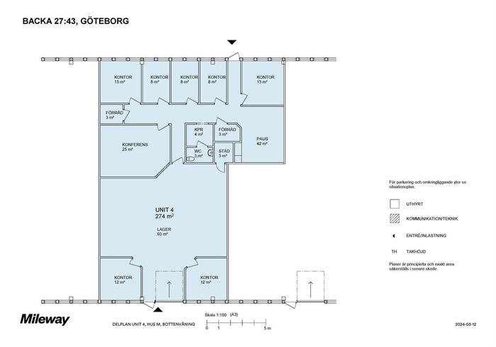
Nu finns möjlighet att hyra envälplanerad kombilokal om totalt 274 kvmi det populära industriområdet Backa, strax norr om centrala Göteborg. Byggnaden renoverades 2008 och erbjuder ljusa och fräscha lokaler med både kontors- och lagerytor som är perfekt anpassade för små och medelstora verksamheter.

Lokalinformation


  • Kontorsyta: 185 kvm med kontorsrum i olika storlekar, konferensrum samt faciliteter som pentry, pausyta och WC.

  • Lageryta: 89 kvm med egen markport och takhöjd om cirka 3,5 meter. Smidig in- och utlastning direkt från markplan.

  • Tillgänglighet: Direkt access från Backa Bergögata och fri parkering precis intill fastigheten.

Lagerlokalen kan utökas till 110 kvm genom att ta bort två kontor.

Läge och omgivning

Backa är ett av Göteborgs mest attraktiva industriområden, endast7 km norr om centrala Göteborgoch i direkt anslutning tillE6. Området är ett nav för handel, logistik och tillverkning, med närhet till bådeStigs CenterochBäckebol Köpcenter, där det finns ett brett utbud av butiker, restauranger och service.

Det finns ocksågoda kollektivtrafikförbindelsermed bussar som snabbt och smidigt tar dig till centrala Göteborg och andra delar av regionen.

Denna kombilokal är enfunktionell och flexibel lösningför företag som söker en modern arbetsmiljö med praktisk lagerfunktionalitet i ett lättillgängligt och strategiskt beläget område.

Välkommen att kontakta oss för mer information eller för att boka en visning!

Omgivning

Företag i närheten:

Volvo Car, Swedol, Dagab, PostNord, BGM Logistics AB och Budbee

Parkeringsmöjligheter/garage:

Fri parkering

Vägbeskrivning:

Direkt anslutning till E6

Planlösning

Fastighetsbeteckning:

Backa 27:43

Byggår:

1990

Renoveringsår:

2008

Våningsplan:

1 av 2

Planlösning:

Se bilder/PDF.

Kommunikationer

Goda kollektivtrafikförbindelser med buss till centrala Göteborg

Service

Närservice:

Närhet till levande handelsplats kring Stigs Center och Bäckebol Köpcenter med ett brett serviceutbud av butiker, gym och restauranger

Övrigt

Takhöjd:

3,5 m

Lokalen kan nås via:

Egen markport

Kontraktlängd:

Förhandlingsbart

Kontrakttyp:

Förstahandskontrakt

Tillträde:

Omgående

Kontakta Annonsör

Markus Christensson

Markus Christensson