Dokument

Ritning 260 k[…].Ritning 260 kvm Hus 50
Hus 50 OMBY[…].Hus 50 OMBYGGNADSFÖRSLAG

Vuoskonjärvivägen 21

Kontor/Lager, 260 m2, Gällivare

Nu finns möjlighet att hyra en kontorslokal med egen entré i bra läge på Gällivare företagscentrum.

Lokalen kan anpassas i samråd med tilltänkt hyresgäst.

Hör av er för mer information eller om ni vill ha en visning av lokalen

Omgivning

Här blir ni granne med bland annat PostNord, NorrVulk, Metso, Sandvik, Eitech och Granitor.

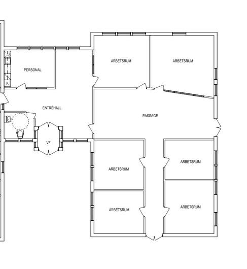
Planlösning

Se bifogad planlösning samt skissförslag på anpassning

Kontakta Annonsör

Per Jatko

Per Jatko