Gärdebyn

Industri/Kontor/Lager, 1050 m2, Östhammar

Hyresfastighet till salu - Alunda
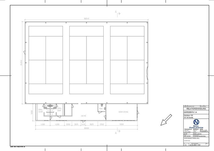
Nu erbjuds en nybyggd fastighet (byggt 2021) med flexibla lokaler och moderna lösningar, Byggnaden om 1050 m² inrymmer en välkomnande entréhall, två stora omklädningsrum. RWC, kontor/konferensrum samt en stor industrihall som idag brukas som padelhall med 3 inomhusbanor.
Tack vare takhöjden som är strax över 9 meter och den generösa öppna golvytan passar byggnaden även perfekt till övriga verksamheter inom lager/logistik m fl.
Idag finns en mindre port i byggnadens ena gavel, ca 3x3,5 meter men större port går givetvis att installera.
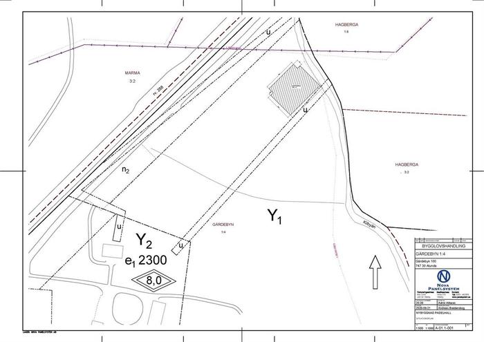
Fastigheten har en tomtareal om 4759 m² med en generös grusad uppfart med plats för flertalet parkeringsplatser.

Bergvärme installerat och god eltillgång (125 ampere) till byggnaden. Låga driftskostnader.

Alunda är en tätort där du har nära till allt. En växande tätort där kommunen satsar stort på att företag kan utvecklas och etableras och i Alunda erbjuds en god samhällsservice, bostäder och möjlighet till pendling. Bra kommunikationer via väg 288 till Uppsala, Gimo, Östhammar och Norrtälje. Det tar exempelvis endast 20 minuter till påfarten till E:an som tar dig såväl norr- och söderöver.

För mer information och visning kontakta ansvarig fastighetsmäklare.

Omgivning

Omgivning/natur:

Fastigheten är belägen strax intill Olandsbygdens Golfklubb ett par kilometer förbi Alunda Centrum längs 288:an mot Östhammar. Nära gångavstånd till Gärdeby Krog som serverar husmanskost. I tätorten Alunda finns det mesta. Här finns skola, förskolor, matbutik, apotek, konditori, restauranger, byggvaruhandel m.m.

Naturen finns runt hörnet, med badplatser och skogspromenader tillgängliga.

Kommunikationer

Från Alunda centrum tar det endast 30 minuter med buss till Uppsala eller Östhammar och med bil ca: 25 minuter. Mycket goda bussförbindelser med flera busslinjer som trafikerar området.

Övrigt

Byggnad:Hyresfastighet

Byggnadstyp: Hyreshusbyggnad

Byggår: 2021

Beskrivning: Grund: platta på mark
Stomme: stål
Bjälklag: stål
Fasad: sandwichpaneler med PIR på stora hallen för padelbanorna och träpanel i lågdelen med omklädningsrum och konferensrum
Tak: plåt

Brandteknisk byggnadsklass: Br 3

Byggnaden inrymmer en padelhall med tre banor. Det är ingång till en hall med plats för soffgrupp och reception. Härifrån ingång till två omklädningsrum med duschar. Det finns också ingång till ett teknikrum samt ett extr utrymme för lager, personalrum eller dylikt. Padelhallen har tre banor samt plats för läktare i mindre format. Här finns också ugång via en port på den högra väggen. Den är ca 3,5x 3,5 meter.

Förberett för 4 st laddstolpar.

Uppvärmning, kylning och ventilation
Uppvärmning: Bergvärme med golvvärme på hela ytan
Ventilation: mekanisk till och frånluft

Vatten och avloppstyp
Eget vatten och eget avlopp med sluten tank (6 kubik tank).

Driftskostnad:

120 195 /år

Pris:

8 000 000

Prisinformation:

Högstbjudande

Hyresintäkter:

946 324 /år

Kontakta Annonsör

Claes Rietz

Claes Rietz