Dokument

Ritning_Kontrollanten 9_Unit 27_

Verkstadsgatan 4

Industri/Lager, 220 m2, Örebro

Hyra: Kontakta annonsören

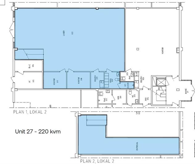
Lagerlokal med oljeavskiljare, egen markport samt tillhörande kontor

Kontors- och lagerfastighet med ledig lagerlokal om 220 kvm på markplan. Lagret har en oljeavskiljare installerad i lokalen samt goda lastningsmöjligheter med en takhöjd om fyra meter och egen markport. Kontorsytan består av två mindre kontorsrum och faciliteter erbjuds i form av kök/pentry, dusch, omklädningsrum och WC. Asfalterade ytor med parkering samt sköna grönområden finns i anslutning till lokalen.

Bista industriområde är beläget cirka 3 kilometer sydväst om centrala Örebro och ligger på ett bra logistikläge med närhet till E18 och E20. Området präglas av mindre lager- och logistikfastigheter, kontor och butiker. Enklare service med lunchservering finns i närområdet och fullt serviceutbud finns inom räckhåll i centrala Örebro. Det finns goda kollektivtrafikförbindelser med buss till centrala Örebro samt cykel- och gångväg. 

Omgivning

Företag i närheten:

NetOnNet, Manges padel, Mekonomen, Bilprovningen och AB Karl Hedin Bygghandel

Parkeringsmöjligheter/garage:

Fri parkering

Skyltläge:

Bra exponering av skyltläge i området

Vägbeskrivning:

Direkt anslutning till E18 och E20

Planlösning

Fastighetsbeteckning:

Kontrollanten 9

Byggår:

1975

Renoveringsår:

1991

Våningsplan:

1

Planlösning:

Se planritning bland bilder.

Kommunikationer

Goda kollektivtrafikförbindelser med buss till centrala Örebro

Service

Närservice:

Enklare service med lunchservering finns i närområdet och fullt serviceutbud finns inom räckhåll i centrala Örebro

Övrigt

Takhöjd:

4 m

Lokalen kan nås via:

En markport

Kontraktlängd:

Förhandlingsbart

Kontrakttyp:

Förstahandskontrakt

Tillträde:

Omgående.

Kontakta Annonsör

Susanne Bermark

Susanne Bermark