Verkstadsgatan 4
Örebro, 220 m2
Lagerlokal med oljeavskiljare, egen markport samt tillhörande kontor Kontors- och lagerfastighet med ledig lagerlokal om 220 kvm på markplan. Lagret...
Dokument
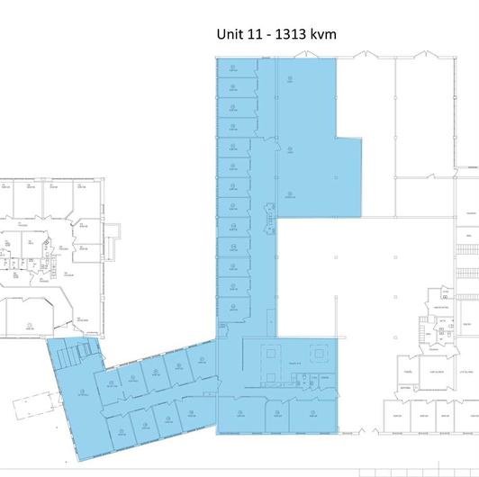
Järnmalmen 1 -Planritning_Plan 1-2.pdfIndustri/Kontor/Lager, 1313 m2, Örebro
Hyra: Kontakta annonsören
Nu finns en flexibel lokal om totalt1 313 kvmatt hyra iHolmen industriområde, bara 1 km norr om centrala Örebro. Lokalen kombinerar kontorsytor och lager-/verkstad medgenerösa personalutrymmen, vilket gör den idealisk för företag som söker en modern och komplett arbetsplats i ett strategiskt läge.
Nyckelfakta om lokalen
Fördelar med lokalen
Området - Holmen industriområde
Holmen industriområde ligger i direkt anslutning till Örebros viktiga transportleder och är ett område som präglas av industri och lagerlokaler. Samtidigt befinner det sig iexpansiv utvecklingmed planer på att integrera arbetsplatser, bostäder och service i framtiden. Närliggande handelsområden erbjuder ett brett utbud av butiker, restauranger och träningsmöjligheter. Goda bussförbindelser finns till Örebro centrum.
Denna lokal erbjuder en unik kombination avfunktion, komfort och läge- perfekt för företag som söker en arbetsplats med både kontor och lager/verkstad i centrala Örebro.
Kontakta oss för mer information eller för att boka en visning!
Byggmax, Svensk Cater AB, Biltema, Autoexperten och Coop
Parkeringsmöjligheter/garage:Fri parkering på fastigheten
Skyltläge:Bra skyltläge mot E18 och E20
Vägbeskrivning:Direkt anslutning till E18 och E20
Järnmalmen 1
Byggår:1963
Renoveringsår:1999
Våningsplan:1 av 3
Planlösning:Se planritning bland bilder eller ladda ned PDF för bättre upplösning.
Goda kollektivtrafikförbindelser med buss till centrala Örebro
Närliggande handelsområde erbjuder ett brett serviceutbud med butiker, restauranger och träningsfaciliteter
5 m
Lokalen kan nås via:Egen entré samt en markport
Hiss:Ja
Kontraktlängd:Förhandlingsbart
Kontrakttyp:Förstahandskontrakt
Tillträde:Omgående. Omgående