Verkstadsgatan 4
Örebro, 72 m2
Nyrenoverad kontorslokal med moderna faciliteter Nu finns möjlighet att hyra en trevlig och funktionell kontorslokal om72 kvmi ennyrenoverad kontors- och...
Dokument
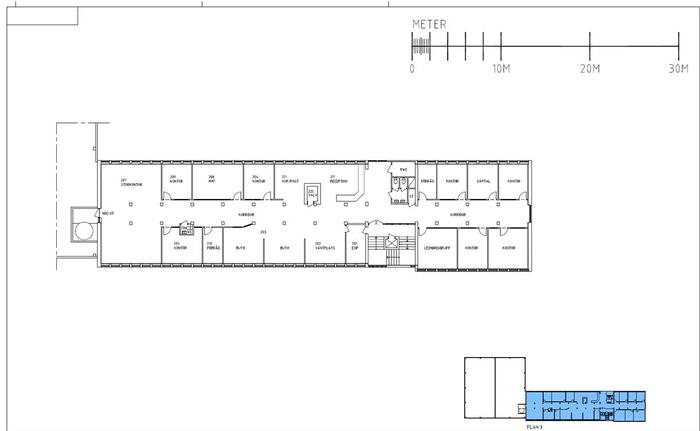
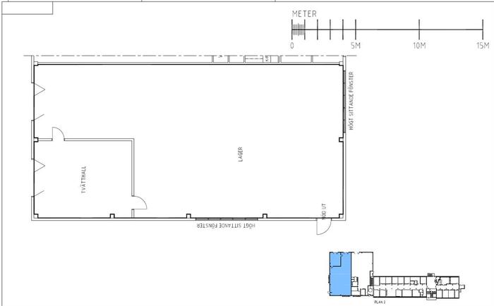
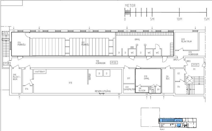
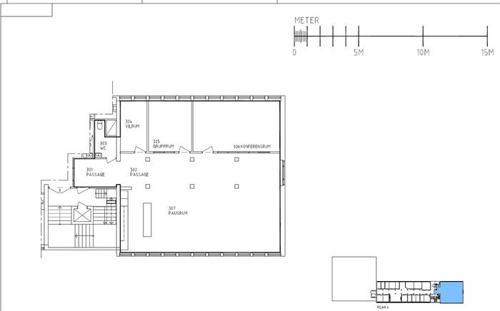
Järnmalmen 1_Planritning_Unit 1.pdfIndustri/Kontor/Lager, 1130 m2, Örebro
Hyra: Kontakta annonsören
Nu finns möjlighet att hyra en flexibel kombilokal om1 130 kvmi Holmen industriområde, endast1 km från Örebro centrumoch med direkt anslutning till E18 och E20.
Fastigheten är perfekt för företag som behöver både moderna kontorsytor och funktionella lagerutrymmen.Området är under stark utveckling, och i närheten finns butiker, restauranger och träningsmöjligheter. Goda bussförbindelser till centrala Örebro.
Kontakta oss för mer information eller visning!
Byggmax, Svensk Cater AB, Biltema, Autoexperten och Coop
Parkeringsmöjligheter/garage:Fri parkering på fastigheten
Skyltläge:Bra skyltläge mot E18 och E20
Vägbeskrivning:Direkt anslutning till E18 och E20
Järnmalmen 1
Byggår:1963
Renoveringsår:1999
Planlösning:Se planritning bland bilder / PDF.
Goda kollektivtrafikförbindelser med buss till centrala Örebro
Närliggande handelsområde erbjuder ett brett serviceutbud med butiker, restauranger och träningsfaciliteter
6 m
Lokalen kan nås via:Entré samt 2 lägre vikportar in till lager/spolhallen
Hiss:Ja
Kontraktlängd:Förhandlingsbart
Kontrakttyp:Förstahandskontrakt
Tillträde:Omgående.