Västergatan 1
Växjö, 609 m2
Anpassningsbart kontorsutrymme mitt i Växjö! Västergatan 1 hälsar er välkomna till ett stort kontorsutrymme mitt i centrala Växjö. Här erbjuds...
Kontor/Kontorshotell, 648 m2, Växjö
Hyra: Kontakta annonsören
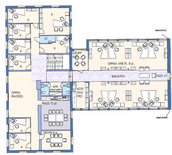
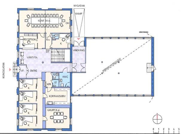
Ta chansen att hyra en unik lokal i den charmiga fastigheten på Kungsgatan 10, belägen i centrala Växjö.
Lokalen har närhet till all tänkbar service inom bekvämt gångavstånd. Med endast 500 meter till Växjö Centralstation blir lokalen lättillgänglig för både anställda och affärsbesökare.
Lokalen sträcker sig över två våningsplan och erbjuder en mångsidig potentiell arbetsmiljö. Här finner du flertalet mötesrum och kontor, blandat med stora öppna ytor på plan två. Möjligheterna är stora för att anpassa ytorna till nya behov.
För extra bekvämlighet finns möjlighet att hyra garageplats under fastigheten.
I samma fastighet finns också flera välrenommerade hyresgäster som Domstolsverket och Länsstyrelsen, vilket skapar en professionell och respekterad arbetsmiljö.
Upptäck möjligheterna med denna charmiga lokal i centrala Växjö. Kontakta oss för mer information eller för att boka en visning och föreställ dig din verksamhets framtid i denna inspirerande arbetsplats!
Gunnar Gröpe 10
Byggår:1976
Energiklass:C
Fastigheten ägs av Stenvalvet, och hyrs ut av Visions.
Kontraktlängd:Förhandlingsbart
Kontrakttyp:Förstahandskontrakt
Tillträde:Enligt överenskommelse