Ekebybruk 2 N

Kontor/Kontorshotell, 13 m2, Uppsala

Hyra: Kontakta annonsören

Fint kontorsrum på Ekeby Bruk
Nu finns möjligheten att hyra ett eget kontorsrum i vacker omkringliggande och historisk miljö i Ekeby Bruk. Vi erbjuder nu ett trevligt inrett kontorsrum om ca 13 m². Hyran för rummet är 5835 kr/månad.
Perfekt för dig som söker ett eget kontor med förmånlig månadshyra där värme, el, vatten, WC, personalkök och internet ingår.
Alltigenom välskötta och modernt inredda kontor med fina golv, ljusa väggar och fönster med fint ljusinsläpp. Transporthiss finns i fastigheten och möjlighet till parkering finns för 300 kr/månad.

Omgivning

Omgivning/natur:

Ekeby Bruk är ett industriområde endast 2 kilometer från centrala Uppsala med ett stort utbud av företag och verksamheter vilket skapar en miljö av samverkan och ger synergieffekter.

Företag i närheten:

I området finns diverse service i form av restauranger och närlivs etc.

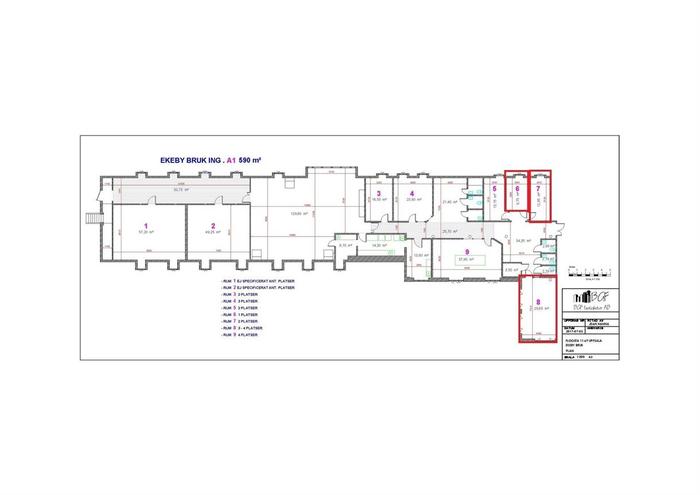
Planlösning

Planlösning:

Nu finns det ett fint kontorsrum i härligt miljö ledig på Ekeby Bruk. Rummet är 13 m² och du har tillgång till gemensamma ytor såsom foaje/väntrum, kök med stor fin matsalsyta och flertalet toaletter. Rummet är låsbart och belägen i lokal med tyst och lugn miljö.

Kommunikationer

Stadsbussarna trafikerar området mellan Uppsala Centralstation och Ekeby Bruk. Fina cykelvägar som tar dig till city på mindre än 10 minuter.

Kontakta Annonsör

Pernilla Persson

Pernilla Persson