Dokument

Planritning 1.pdf

Kemistvägen 30

Kontor/Kontorshotell, 7000 m2, Stockholm

Hyra: Kontakta annonsören

Anpassade skollokaler med tillgång till Aula, Padelbanor och utmärkta kommunikationer. 1500-7000m2

Lokalerna har till nyligen nyttjats för skolversamhet. Klassrum, matsal, personalrum mm finns anpassat och redo att ta i bruk. Lokalerna ligger i anslutning till fd Täby Parkhotell där en stor föreläsningsaula finns att tillgå samt Padelbanor i en stor hall som kan nyttjas för idrott. 

Omgivning

Omgivning/natur:

Kontor, logistik, skola, lätt industri.

Parkeringsmöjligheter/garage:

Parkering finns.

Planlösning

Fastighetsbeteckning:

Åkerby 12

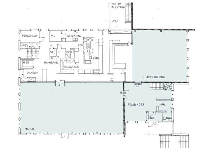
Planlösning:

Delvis klassrumsindelad planlösning med flertalet storrumslösningar som är möjliga att dela ned i mindre salar. Möjlig tillgång till större aula samt padelbanor.

Kommunikationer

3 min till Täby Centrum‚ roslagsbanan. God anslutning till E18 via Bergtorpsvägen.

Service

Närservice:

1.3 km till Täby Centrum.
I direkt anslutning till lokalen finns padelhall och en Circle K.

Övrigt

Uppvärmning:

Fjärrvärme

Kontraktlängd:

Förhandlingsbart

Kontrakttyp:

Förstahandskontrakt

Kontakta Annonsör

Victor Cunningham

Victor Cunningham