Dokument

Planritning 90 kvm - Kontorshotellet.pdf

Kanalstråket 1

Kontorshotell, 70 m2, Göteborg

Hyra: Kontakta annonsören

Vill du och ditt företag utvecklas i en av Göteborgs absolut vackraste miljöer?
I Jonsereds Fabriker erbjuder vi en kreativ och lugn arbetsmiljö!

Välkommen till vårt superfräscha kontorshotell i Jonsereds Fabriker! Här kan du och ditt företag utvecklas i en vacker miljö, endast åtta minuters resväg från centrala Göteborg.

Nu har vi en lokal om ca 70 kvm ledig på bästa läge i kontorshotellet. Det finns 3 tillgängliga rum i fil med varandra som kan anpassas efter din verksamhets behov fr 70 - 210 kvm.

Fastigheten erbjuder en kreativ och lugn arbetsmiljö med skogen och Säveån som närmaste grannar. I vårt populära kontorshotell är lokalerna modernt designade i en miljö med tydliga kopplingar till fastighetens industriella arv.

Välkommen förbi på en personlig visning!

Omgivning

Omgivning/natur:

Natursköna omgivningar med Säven som rinner runt fastigheten.

Företag i närheten:

Poppels Bryggeri, Brödfabriken, Icebug, Lillegrisen, One Cake, Irse, Guiderevision, Trig mfl.

Parkeringsmöjligheter/garage:

Finns goda parkeringsmöjligheter på området.

Skyltläge:

Ja

Vägbeskrivning:

Från Göteborg: E20 mot Stockholm, kör förbi Partille och sväng av vid Jonsered, avfart 82. Kör igenom samhället och efter ca 200 m så ser du Jonsereds Fabriker på vänster sida.

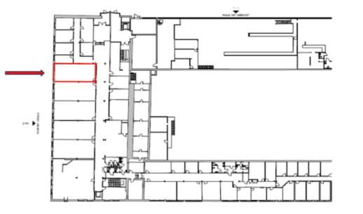
Planlösning

Fastighetsbeteckning:

Jonsered 1:12

Renoveringsår:

2014

Våningsplan:

2 av 3

Planlösning:

I vårt kontorshotell finns just nu möjlighet att hyra kontor om ca 70 kvm.
Som hyresgäst hos oss delar du på kök, konferensrum, samt toaletter/dusch med övriga hyresgäster. Lokalerna har internet via fiber med möjlighet att hyra både serverrum och/eller lager i angränsande lokal.

Kommunikationer

Pendeltågstationen ligger endast 50 m från fastigheten. Tågen går var 30:de minut, varje kvart under rusningstid, från kl. 05 på morgonen till 00:40 på nätterna. Resan till Göteborg C tar 12 minuter.
Busshållplats, med busslinjerna GUL Express och 519, ligger 100 m från fastigheten.
Bil från centrala Göteborg tar ca. 8 minuter via E20. Närhet till Partille, Lerum och Göteborg.

Service

Närservice:

I närområdet hittar du bla Brödfabriken, samt Restaurang Lille Grisen som serverar lunch. Du når Allum på 7 min med bil, och Jonsereds trädgårdar ligger på promenadavstånd vilket är fantastiskt vackert under sommarhalvåret.

Övrigt

Övrigt:

Jonsereds Fabriker erbjuder arbetsplats i en stimulerande, kreativ och modern miljö. Med 12 minuters tågresa från Göteborg och med tågstationen endast 50 meter från kontoret så är det ett smidigt alternativ till en kontorsplats i centrala Göteborg. Du slipper dessutom trängselavgifter!

Hiss:

Ja

Tillträde:

enligt ök

I hyran ingår:

Värme, skatt, el

Kontakta Annonsör

Eva Näslund

Eva Näslund