Arabygatan 21
Växjö, 560 m2
Flexibel lokal om 560 kvadratmeter i mycket bra läge utmed vältrafikerade Arabygatan. Nu har du möjlighet att hyra en lokal...
Kontor, 1130 m2, Växjö
Hyra: Kontakta annonsören
Varför Fabriken 1?
Nyckelfunktioner:
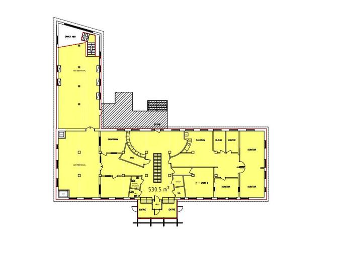
Fabriken 1 är en utmärkt möjlighet för dig som vill etablera eller expandera din skolverksamhet i en färdig lokal med bevisad funktionalitet. Thorengruppen har tidigare bedrivit skola här, vilket visar att lokalen är optimal för just denna typ av verksamhet.
Ta chansen att hyra en lokal som är redo att välkomna en ny generation av elever och lärare. Kontakta oss idag för mer information och visning!
Välkommen till Fabriken 1 - platsen för framtidens lärande!
Närhet till Bokhultets Naturreservat.
Företag i närheten:HRM Software AB, Kontorshotellet Lokstallet, Lernia, Tandläkare Wassenius, Småländska Bil AB,
Parkeringsmöjligheter/garage:Bra med parkeringsmöjligheter på området
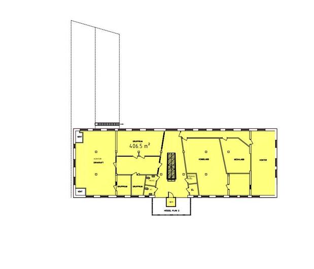
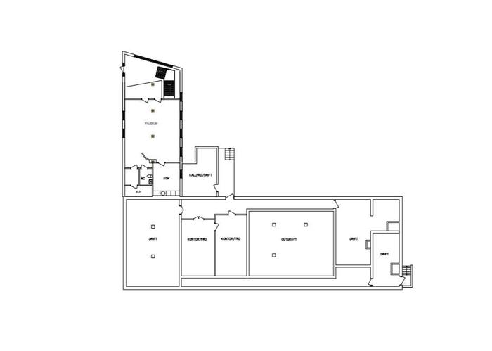
Fabriken 1
Planlösning:Kontor och lektionssalar i två plan, perfekt för gymnasium eller vuxenutbildning.
Enkelt och smidigt oavsett om du kommer med bil, tåg, buss, cykel eller om du väljer att promenera.
5-10 minuters promenad till centrum. Coop, Hennings Konditori, Kungsgrillen
Emilshus erbjuder lokalt baserad förvaltning. Vi finns alltid nära tillhands när det behövs och delar gärna med oss av vårt breda kunnande inom lokal- och fastighetsfrågor. Vi har lokal närvaro och engagemang för din verksamhet. Tillsammans hittar vi kreativa lösningar för att göra din arbetsplats så bra som möjligt. Du som kund är alltid i vårt fokus.
Kontrakttyp:Förstahandskontrakt
Kontraktbeskr.:Enligt överenskommelse
Tillträde:Enligt överenskommelse