Dokument

FLA¨KTEN 11 PLAN 4 SKISS 2_.pdf
Broschyr_Kvarnvägen 2.pdf
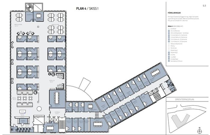
FLA¨KTEN 11 PLAN 4 SKISS 1.pdf

Kvarnvägen 2

Kontor, 400 - 7427 m2, Växjö

Hyra: Kontakta annonsören

Flexibla kontorsytor i Växjö fördelat på klassiska cellkontor blandat med öppna kontorslandskap.

Kvarnvägen 2är strategiskt placerad mellan Växjö centrum och Linnéuniversitetet. Det innebär närhet till stadens puls, universitetets innovativa miljö och smidig access till riksvägar som gör det enkelt att pendla. Här finns också gott om parkering, busshållplatser direkt utanför dörren. Dessutom erbjuder området underbara promenadstråk runt sjöarna Trummen och Växjösjön - perfekt för en lunchpromenad.

Moderna och anpassningsbara lokaler
Fastigheten erbjuder flexibla kontorslösningar där du kan skapa ditt drömkontor efter dina behov. Här finns möjlighet att kombinera enskilda kontorsrum med öppna landskap, och vi hjälper dig gärna med förslag på lösningar. Hela plan 3 är redan uthyrt, men det finns lediga ytor på de övre våningarna med ännu bättre utsikt.

Securitas valde Kvarnvägen 2 - och fler är på väg!
Flera företag har redan etablerat sig här, inklusive Securitas, som nyligen flyttade in i sina skräddarsydda lokaler på 1 100 kvm.
- "Vi fick en total ombyggnation utifrån våra behov och nu har vi ett kontor som passar vår verksamhet perfekt", säger Robert Avander, regional försäljningschef på Securitas Technology.

Ett levande kontorscenter
Emilshus strävar efter att skapa ett levande kontorscenter där företag från olika branscher kan verka och växa tillsammans. Här finns redan faciliteter som omklädningsrum, dusch och bastu, och vi planerar att utveckla fler gemensamma ytor, både inne och ute.

Fördelar med Kvarnvägen 2:


  • Moderna och flexibla kontorsytor från 400 till 7 427 kvm

  • Utmärkt läge mellan Växjö centrum och Linnéuniversitetet

  • Goda kommunikationsmöjligheter och närhet till riksvägar

  • Gott om parkering och laddstationer

  • Fantastiskt skyltläge med bra synlighet

  • Promenadstråk runt sjöarna Trummen och Växjösjön

  • Nära till ICA Kvantum, Willys, Max Burgers och fler aktörer

Omgivning

Omgivning/natur:

Underbara promenadstråk runt både sjön Trummen och Växjösjön, för en skön lunchrunda.

Företag i närheten:

Växjö Energi AB, Actic Växjö Simhall, Vida Building, Växjö Träningsfabrik, Andritz

Parkeringsmöjligheter/garage:

Goda parkeringsmöjligheter i direkt anslutning.

Skyltläge:

Superbra skyltläge med bra synlighet från flera håll.

Vägbeskrivning:

Belägen på östra delen av Växjö med närhet till Linneuniversitetet, riksvägar och city.

Planlösning

Fastighetsbeteckning:

Fläkten 11

Byggår:

1973

Planlösning:

Flexibla kontorsytor som idag är uppdelade mellan både öppna landskap och klassiska cellkontor. Se bilder för exempel på lösningar för nytt kontor.

Energiklass:

D

Kommunikationer

Goda kommunikationsmöjligheter med närhet till riksväg, busshållplats och cykel/gångväg.

Service

Närservice:

Ica Kvantum Teleborg, Willys, Coop, Max Burgers, Pizzeria Öster

Övrigt

Övrigt:

Emilshus erbjuder lokalt baserad förvaltning. Vi finns alltid nära tillhands när det behövs och delar gärna med oss av vårt breda kunnande inom lokal- och fastighetsfrågor. Vi har lokal närvaro och engagemang för din verksamhet. Tillsammans hittar vi kreativa lösningar för att göra din arbetsplats så bra som möjligt. Du som kund är alltid i vårt fokus.

Uppvärmning:

Centralvärme

Ventilation:

Mekanisk till- och från luft

Hiss:

Ja

Kontraktlängd:

Förhandlingsbart

Kontrakttyp:

Förstahandskontrakt

Tillträde:

Enligt överenskommelse

Kontakta Annonsör

Stellan Petersson

Stellan Petersson