Dokument

Ringborren 15 - Hus 70 - Unit 22_plan 2.pdf

Ringborregatan 1

Kontor/Övrigt, 330 m2, Västerås, Hälla

Hyra: Kontakta annonsören

Ljus kontorslokal i bra skick med fräscha faciliteter finns att hyra i Hälla

Nu finns möjlighet att hyra enmodern och rymlig kontorslokalom330 kvmi det populära lättindustriområdet Hälla, Västerås. Lokalen präglas avljusa, öppna ytorkombinerat medkontorsrum i varierande storlekar, vilket gör den anpassningsbar för många typer av verksamheter.

Om lokalen


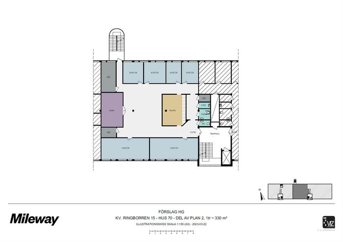
  • Planlösning:En kombination av öppna arbetsytor och separata kontorsrum.

  • Faciliteter:Konferensrum, WC, förråd samt kök/pentry.

  • Åtkomst:Lokalen nås smidigt via trapphus med hiss.

  • Anpassningsbar:Tidigare använd som utbildningslokal, men kan anpassas för exempelvis kontor, kreativ verksamhet eller konsultföretag.

Läge och omgivning

Hälla är ettstrategiskt beläget lättindustriområdeendast6 km väster om centrala Västerås. Här får du:


  • Närhet till transport:Direkt anslutning till E18 och nära Västerås flygplats.

  • Serviceutbud:Stort utbud av butiker, restauranger och service vid Hälla Shopping och Hälla Syd.

  • Kollektivtrafik:Goda bussförbindelser till centrala Västerås.

Denna lokal kombinerar ettmodernt utförandemedstrategisk placeringoch lämpar sig för företag som söker en representativ och välplanerad arbetsmiljö.

Kontakta oss gärna för mer information eller för att boka en visning!

Omgivning

Företag i närheten:

Schenker, IB Transport, Ahlsell, Hilti och Däckkompaniet

Parkeringsmöjligheter/garage:

Möjlighet att teckna tilläggsavtal för parkering

Vägbeskrivning:

Direkt anslutning till E18

Planlösning

Fastighetsbeteckning:

Ringborren 15

Byggår:

1961

Renoveringsår:

2015

Våningsplan:

2

Planlösning:

Se bilder/PDF.

Kommunikationer

Goda kollektivtrafikförbindelser med buss till centrala Västerås

Service

Närservice:

Brett serviceutbud med butiker och restauranger på närliggande Hälla Shopping och Hälla Syd

Övrigt

Lokalen kan nås via:

Trapphus med hiss

Hiss:

Ja

Kontraktlängd:

Förhandlingsbart

Kontrakttyp:

Förstahandskontrakt

Tillträde:

Omgående.

Kontakta Annonsör

Lisa Tegnér

Lisa Tegnér