Malmövägen 12

Kontor, 105 m2, Värnamo

Hyra: Kontakta annonsören

Kontorslokal på andra våningen i fastigheten Almen i det populära Kärnans Köpcenter.

Lokalen ligger på plan 2 och är bara att flytta in i. 

Trevlig kontorslokal belägen i det populära Kärnan Köpcenter, ett av Värnamos mest klassiska handelsplatser. Kärnan är belägen strax söder som centrala Värnamo längs länsväg 151, den stora genomfartsleden i Värnamo som skapar ett bra trafikflöde till fastigheten. 

Goda kommunikationer med bil och kollektivtrafik med bussplats  precis intill fastigheten.

Fastigheten har en stor parkering för både besökare och personal.

Området gynnas av närhet till både restauranger, butiker och närservice.

Området innehåller flera stora aktörer inom handel som Stadium, Hemmahallen, Blomsterlandet, ICA Kvantum, Mio, Jem & Fix och Granngården.

Omgivning

Omgivning/natur:

Nära till Apladalens naturområde

Företag i närheten:

Hemmahallen, Stadium, Ica, Blomsterlandet, Mio mfl.

Parkeringsmöjligheter/garage:

Gott om parkeringsplatser

Skyltläge:

Mycket bra skyltläge

Vägbeskrivning:

Fastigheten ligger i direkt anslutning till väg 151 och med närhet till motorväg E4 med goda av- och påfarts möjligheter.

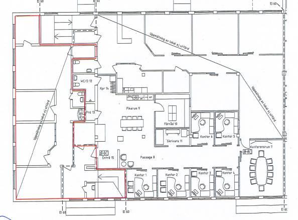
Planlösning

Fastighetsbeteckning:

Almen 9

Planlösning:

Kontorslokal med tre kontor, gemensamma ytor.

Kommunikationer

Smidigt med både buss, bil och cykel.

Service

Närservice:

I samma hus har du både mataffär och Café. Restaurang och annan service hittar du i närområdet.

Övrigt

Övrigt:

Emilshus erbjuder lokalt baserad förvaltning. Vi finns alltid nära tillhands när det behövs och delar gärna med oss av vårt breda kunnande inom lokal- och fastighetsfrågor. Vi har lokal närvaro och engagemang för din verksamhet. Tillsammans hittar vi kreativa lösningar för att göra din arbetsplats så bra som möjligt. Du som kund är alltid i vårt fokus.

Kontraktlängd:

Förhandlingsbart

Tillträde:

Efter överenskommelse

Kontakta Annonsör

Carl-Johan Bergström

Carl-Johan Bergström