Kontor/Kontorshotell,
112 - 577 m2,
Vänersborg, Vänersborg
Vindsvåningslokaler hos Stenvalvet – centralt i Vänersborg med utsikt och flexibilitet
Nu finns chansen att hyra kontorslokaler med ett centralt läge i Vänersborg, där ni som hyresgäst har stor möjlighet att påverka lokalens utformning. Lokalerna är i behov av renovering och anpassas i samråd med er vilket ger er chansen att skapa en arbetsmiljö som passar just er verksamhet.
Det finns tre olika lokalalternativ att välja mellan:
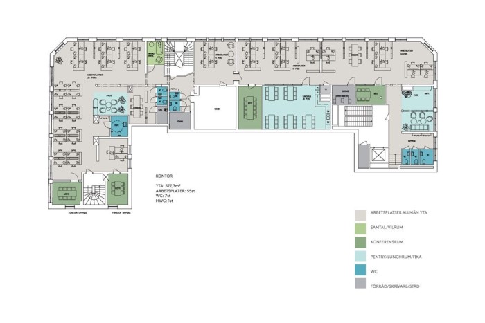
- 577 kvm: En större sammanhängande yta
- 244 kvm: Mellanstor lokal
- 112 kvm: Mindre lokal med god funktionalitet
Samtliga lokaler är belägna på vindsvåning med utsikt i flera väderstreck, med vyer som sträcker sig från Vänern till Vänersborgs torg. Planlösningen kan utformas med öppna ytor, enskilda rum eller en kombination, beroende på hur ni vill arbeta.
Fastigheten är belägen på Drottninggatan, mitt i stadskärnan, med närhet till restauranger, caféer, butiker och annan service. Kommunikationerna är mycket goda. Lokaltrafik finns inom 100 meter och Vänersborgs Resecentrum med tåg- och bussförbindelser ligger endast 550 meter bort. Parkeringsmöjligheter finns i närheten, inklusive alternativ för tim- eller månadsbiljett.
I direkt anslutning till fastigheten finns även grönområden, parker och småbåtshamnen vilket skapar goda förutsättningar för utomhusaktiviteter, promenadmöten eller en stunds avkoppling under arbetsdagen.
Vill ni veta mer eller boka en visning?
Välkommen att höra av er till oss på Stenvalvet!
Omgivning
Fastigheten Poppeln 7 ligger i hjärtat av Vänersborg - en charmig stad vid Vänerns södra strand. Området erbjuder en härlig blandning av historiska byggnader och moderna bekvämligheter.
- Historiska byggnader: I området finns det flertalet historiska byggnader. Området har en rik historia som ger en unik karaktär till stadsbilden.
- Grönområden: För den som uppskattar naturen finns det flera parker och grönområden i närheten, perfekta för en avkopplande promenad eller en picknick.
- Service och bekvämligheter: I området finns ett brett utbud av restauranger, kaféer, butiker och andra bekvämligheter. Allt du behöver finns inom gångavstånd.
- Vänersborgs torg: Ett stenkast bort ligger Vänersborgs torg som erbjuder torghandel under helgerna, vilket ger en livlig och trevlig atmosfär med färska produkter och lokala varor.
- Kultur: Vänersborgs museum ligger också i närheten och erbjuder intressanta utställningar och aktiviteter för alla åldrar.
Planlösning
- Gemensamma ytor
- Samtals-/vilrum
- Konferensrum
- Personalrum med pentry
- Förråd
- Kopieringsrum
- Städutrymme
- Hiss
Kommunikationer
- Buss: Flera busslinjer stannar i närheten, vilket gör det enkelt för både anställda och kunder att ta sig hit.
- Tåg: Vänersborgs centralstation ligger bara en kort promenad bort, vilket ger smidig tillgång till regionala och nationella tågförbindelser.
- Bil: För dig som kör bil finns det gott om parkeringsmöjligheter i området, samt enkel tillgång till de större vägarna E45 och väg 44.
- Egen parkering: Intill byggnaden finns ett eget parkeringsområde med både kort- och långtidsparkering, vilket gör det bekvämt för både anställda och besökare.
Service
- Buss: Flera busslinjer stannar i närheten, vilket gör det enkelt för både anställda och kunder att ta sig hit.
- Tåg: Vänersborgs centralstation ligger bara en kort promenad bort, vilket ger smidig tillgång till regionala och nationella tågförbindelser.
- Bil: För dig som kör bil finns det gott om parkeringsmöjligheter i området, samt enkel tillgång till de större vägarna E45 och väg 44.
- Egen parkering: Intill byggnaden finns ett eget parkeringsområde med både kort- och långtidsparkering, vilket gör det bekvämt för både anställda och besökare.