Typsnittsgatan 11

Kontor/Kontorshotell, 12 m2, Uppsala, Fyrislund

Hyra: 4 500 /m²/år

Inrett kontorsrum i modernt kontorshotell beläget i Östra Fyrislund.
Varmt välkommen till Typsnittsgatan 11 där det numera erbjuds ett modernt kontorsum om ca. 14 kvm. Här erbjuds du att hyra ett eller flera kontorsrum om så önskas, och för den som önskar större kontorsrum så är det anpassningsbart. De gemensamma ytorna som du har tillgång till är et modernt fullutrustat kök, konferensrum med modern konferensteknik samt en RWC. Kontorsrummen är belägna på våning två och hiss finns från markplan. Det finns bra med parkeringsmöjligheter för den bilburne, det finns även tillgång till elbilsladdare.

Utöver kontorsrummen erbjuds pallplatser i det uppvärmda höglagret med såväl hantering av ditt företags varor samt med leverens till kund om det finns behov och önskas.

Varmt välkommen att kontakta ansvarig mäklare för vidare information och visning!

Omgivning

Omgivning/natur:

Östra Fyrislund är ett nyetablerat industri och handelsområde i sydvästra uppsala som ständigt växer. Området är beläget i direkt anslutning till E4an och tack vare dess läge är det redan idag ett mycket attraktivt område. I Östra Fyrislund erbjuds det mesta man kan tänkas sig behöva såsom butiker, restauranger, träningsanläggningar samt populära ICA Maxi Gnista. Detta område passar både de större aktörerna eller mindre företagen tack vare den geografiska placeringen samt att det ständigt utvecklas.

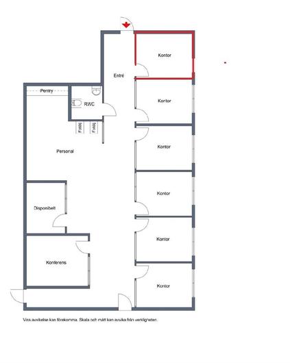
Planlösning

Planlösning:

Moderna och fullt inredda kontorsrum om ca. 14 kvm där du som hyresgäst har tillgång till moderna gemensamma ytor såsom kök med matplats, stort konferensrum, förråd samt RWC. Konferensrummet erbjuder stor bildskärm med modern konferensteknik, perfekt för den som vill kunna arbeta både flexibelt och ha videokonferenser. Kontoret är genomgående modernt och stilrent med fint ljusinsläpp tack vare de stora fönsterpartierna. Det erbjuds möjlighet att hyra ett eller flera kontorsrum och för den som önskar kan man bygga ihop rummen. Det erbjuds även tillgång till pallplatser som finns i fastighetens höglager beläget på entréplan. Egen skyltplats för företag erbjuds vid entrén.

Kommunikationer

I området finns det fina cykelbanor i alla riktningar till och från Uppsala med omnejd. Busstrafik tar dig från centralstationen på ca. 15 minuter och E:4ans på- och avfart ligger i nära anslutning till lokalen vilket gör det otroligt smidigt för den bilburne.

Övrigt

Utgångshyra kr/m2/år:

4500

Kontakta Annonsör

Edvin Nicholls

Edvin Nicholls