Sylveniusgatan 1

Butik/Industri/Kontor, 1430 m2, Uppsala, Fyrislund

Hyra: Kontakta annonsören

Effektiva Industriytor i Fyrislund
Just nu erbjuds ca 1430 kvm passande för diverse industriverksamheter. Lokalerna kan omvandlas och därmed skapa med öppna ytor. Lokalerna kan hyras tillsammans med ytterligare kontorsytor om ca 1220 kvm på samma fastighet. Dessa lokaler är placerade i centrala Fyrislund och har god tillgänglighet samt synlighet.

Omgivning

Omgivning/natur:

Närområdet finns ett brett utbud av service och faciliteter. Boländernas handelsområde, som ligger i direkt anslutning till Fyrislund, erbjuder ett flertal restauranger, butiker och andra tjänster. För den som önskar finns även gym och grönområden i närheten, vilket bidrar till en trivsam arbetsmiljö

Företag i närheten:

Ett rikligt serviceutbud finns i näromrpdet med flertalet lunchrestauranger och butiker. Bolandscity ligger på gång avstånd och erbjduer det mesta vad det gäller närservice.

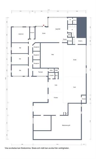
Planlösning

Planlösning:

Industriytor om ca 1430 kvm. I dagsläget är flertalet skiljeväggar uppförda i lokalen vilket framgår av ritningarna. Många agv dessa går att riva för att få mer öppna ytor. Lokalerna är utrustade med hela 6 st portar och kommer med oljeavskiljare och god ventaltion.

Kommunikationer

I anslutning till dessa lokaler finns busslinjer och cykelvägar i alla väderstreck. Som bilburen tar du dig enkelt ut på de stora lederna runt Uppsala som t.ex E4:ans påfarter i norr och södergående riktning

Kontakta Annonsör

Zouhair Ayed

Zouhair Ayed