S:t Olofsgatan 35

Kontor, 250 m2, Uppsala

Hyra: 2 400 kr/m²/år. Moms tillkommer

Högt belägen kontorslokal med övernattningsmöjlighet- S:t Olofsgatan 35
Söker din verksamhet en ljus och fräsch lokal belägen i en modernt rustad fastighet med bra pendlarläge så finns nu denna toppenfina lokal ledig.
Lokalen som är ca 250 m² är högt belägen i fastighet med hiss med utsikt mot både Domkyrkan, Slottet och fönster i hela tre väderstreck som ger ett mycket generöst ljusinsläpp. En minst sagt representativ lokal, idag inredd med såväl öppna ytor som inglasade rum men med flexibilitet finns att anpassa lokalen efter behov. Modernt kök och bra badrum och en unik möjlighet för övernattning för dig eller dina anställda. Hela fastigheten är nyrenoverad med nya fönster, fasader, trapphus och hissar etc.

Läget är perfekt nära både centrum och Resecentrum för goda kommunikationer.

Omgivning

Omgivning/natur:

Lokalen ligger centralt beläget nära affärshuset Kvarnen och Vaksala Torg samt Uppsala Konsert & Kongress.

Företag i närheten:

Det är nära till Kvarnen med all tänkbar service samt nära shoppinggator, gallerior, restauranger och annan service i city som finns på nära gångavstånd

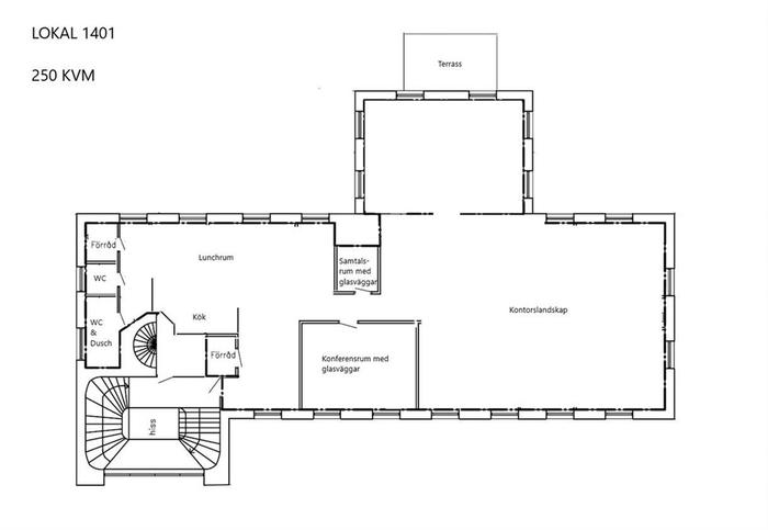
Planlösning

Planlösning:

Lokalen är i mycket gott skick och håller hög standard som t.ex ekparkett, teakdörrar, klinker etc. Flexibel planlösning med såväl öppna ytor som inglasade rum perfekt som konferensrum. Lokalen kan anpassas med nya glasväggar till mötesrum etc. Lokalen är även utrustad med nya moderna lampor 2025.

Kommunikationer

Det tar endast ca 5 min att promenera till Resecentrum. Lokalbussar utgår från Väderkvarnsgatan, Vaksalagatan, Resecentrum och Kungsgatan.

Övrigt

Utgångshyra kr/m2/år:

2400

Hyresinformation:

Moms tillkommer

Kontakta Annonsör

Pernilla Persson

Pernilla Persson