Smedsgränd 2a

Kontor, 12 - 104 m2, Uppsala, Centrum

Hyra: 2 500 /m²/år. Moms tillkommer

Charmigt kontor invid årummet - Smedsgränd 2A
Nu söker vi en ny hyresgäst som önskar ett mycket centralt kontor med ogenerat läge. Denna lokal är ett av sitt slag med ett oslagbart läge. Lokalen om ca 104 m² och har två ingångar och två toalettutrymmen på vardera sida vilket möjliggör en delning av lokalen alternativt att ta en andrahandshyresgäst som passar in i er verksamhet.

Lokalen har genomgående trägolv, fönster i två väderstreck, bra takhöjd och i fastigheten finns hiss.

Mycket centralt beläget kontor i ett av Uppsalas bästa lägen med ingång från mysiga Smedsgränd. Belägen invid gågatan och nära till promenadstråk längs Fyrisån. Exeptionellt bra pendlarläge då kommunikationer med SJ-trafik och pendeltåg till och från Resecentrum ligger ett stenkast bort.

Omgivning

Omgivning/natur:

Unikt kontorsläge vid den vackra Fyrisån i Uppsala. Omgivningen ger en inspirerande arbetsmiljö där du får möjlighet att kombinera arbetslivets krav med ett lugnt och attraktivt läge. Trots läget i stadens centrum och puls ges närhet till grönområden och rekreationsmöjligheter längs Fyrisån.

Företag i närheten:

Här finns närhet till all typ av service; gym, restauranger, kommunikationer och shopping.

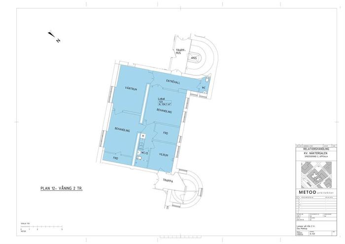
Planlösning

Planlösning:

Från trapphuset möter dig en hall med intillliggande wc. Från hallen finns ingång till två st större rum med genomgång tiill ytterligare rum och en inre hall med enklare pentry, wc med dusch, ett större förråd/mindre kontor med fönster samt ytterligare ett rum med utgång/ingång från trapphus inne på gården. Tack vare två ingångar kan lokalen delas till mindre enheter vilket möjliggör en andrahandshyresgäst med egen ingång.

Kommunikationer

Centralt i Uppsala, endast ett stenkast från Uppsalas Resecentrum. Bra kommunikationer med SJ-trafik och pendeltåg som erbjuder frekventa avgångar varje dag och flera gånger i timmen till och från Resecentrum.

Övrigt

Prisinformation:

Högstbjudande

Utgångshyra kr/m2/år:

2500

Hyresinformation:

Moms tillkommer

Kontakta Annonsör

Pernilla Persson

Pernilla Persson