Kungsgatan 91

Butik/Kontor, 108 m2, Uppsala, Kungsängen

Hyra: 2 000 kr/m²/år

Nu finns möjlighet att bedriva din verksamhet i dessa moderna lokaler med ett mycket bra läge i Industristaden.
Nu finns möjlighet att bedriva din verksamhet i dessa moderna lokaler med ett mycket bra läge i Industristaden.
Lokalen om 107,5 kvm passar för bla kontorsverksamhet.
Lokalen beräknas vara inflyttningsklar årskiftet 2022-23

Omgivning

Företag i närheten:

Vid Resecentrum finns det ett bra utbud av service med matbutiker, caféer och restauranger. Det tar ca 10 minuter att promenera till gågatan mitt i city och där finns ett generöst utbud av service med ett flertal caféer, restauranger och ett varierat utbud av butiker.

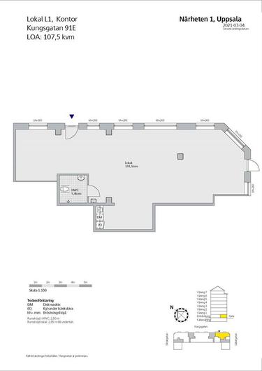
Planlösning

Byggår:

2022

Planlösning:

Lokal under uppförande om 107,5 kvm.

Lokalen är en hörnlokal med två entréer och fönster i två väderstreck som ger att bra ljus in i lokalen. Den har ett mycket bra och synligt läge.
Det kommer finnas ett pentry längst in i lokalen samt en HWC.
Båda lokalerna kommer vara färdigställda enligt följande:
* HWC, grå klinker 15x15cm, vitt blankt kakel 25x40cm.
* Målning av väggar, vit, glans 7.
* Golvbeläggning, linoleummatta grå.
* Ventilation med separat aggregat i lokalen och kanalisation
utförs.
* Värmesystem utförs.
* El och fiber dras in i lokalen till en el central. Ett första
fiberuttag utförs.
*Vatten och avlopp dras in.
* Pentry utförs (Micro, diskmaskin och bänkkylskåp ingår)
* Undertak
* Utslagsvask utförs.

Kommunikationer

Härifrån är det goda kommunikationer då Resecentrum ligger ett stenkast från lokalen. Resecentrum är navet för Uppsalas tåg- och busskommunikationer.
Det går snabbt att ta sig via Kungsgatan till de större påfarterna kring Uppsala.

Övrigt

Utgångshyra kr/m2/år:

2000

Kontakta Annonsör

Zouhair Ayed

Zouhair Ayed