Industrigatan 29

Kontor, 127 m2, Uppsala, Kungsängen

Hyra: 2 220 /m²/år. Tillkommer

Rymlig lokal perfekt lämpad för vård.
Varmt välkommen till Industrigatan 29 och denna moderna vårdlokal om 127 kvm, här erbjuds möjligheten att bedriva vård/omsorg eller annan önskad verksamhet. Lokalen är i dagsläget rumsindelat med totalt 4 behandlingsrum där storlekarna varierar, det finns vatten och avlopp framdraget och installerat i samtliga behandlingsrum. Denna lokal är inredd med personalrum med pentry, fyra behandlingsrum, personaltoalett med dusch och tillhörande omklädningsrum samt tvättmaskin, kundtoalett samt pentry tillämpat för medicin.

Lokalen har genomgående fräscha ytskikt, med ljusmålade väggar och parkettgolv. Lokalen har stora fönsterpartier och tack vare hörnläget så upplevs lokalen som väldigt ljus och rymlig.

Området är mycket populärt med sitt nära läge till centrum, resecentrum och den smidiga accessen till Kungsängsleden och E4:ans påfart. Området ligger ett stenkast från Fyrisån, här finns det vackra promenadstråk och broar över till Stadsparken, studenternas och stadsskogen, detta är vacker oas mitt i stan.

Omgivning

Omgivning/natur:

Lokalerna ligger i Uppsalas södra del, i stadsdelen Kungsängen, som under de senaste åren genomgått en förvandling från industriområde till attraktivt bostadsområde med lokaler i markplan centralt i Uppsala.
I Uppsala centrum finner du ett rikt utbud av restauranger och gallerior - här finns även konserthus, stadsteater, Uppsala universitet och flera mysiga caféer.
Fyrisån har de senaste åren rustats upp med vackra promenadstråk och bryggor, dit är det endast en kort promenad på 10 minuter.

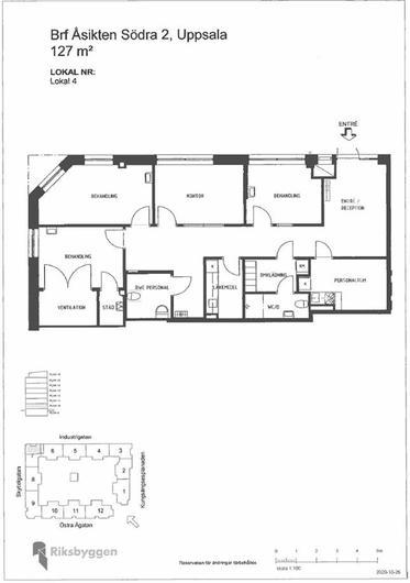
Planlösning

Planlösning:

Rymlig hörnlokal om totalt 127 kvm. När du kliver in i lokalen möts man av en rymlig entré med plats för reception och avhängning. Vidare in i lokalen finns det 4 separata behandlingsrum, samtliga behandlingsrum har vatten och avlopp framdraget och installerat. Till behandlingsrummen finns det ett separat pentry tillämpat för medicin hantering. Det finns även ett rymligt personalrum med pentry, omklädningsrum med tvättmaskin, personal toalett med dusch, kund toalett samt ett förråd. Samtliga ytskikt är fräscha med ljusmålade väggar och parkettgolv.

Kommunikationer

Från lokalen är det promenadavstånd till resecentrum och via tåg har du både nära till Stockholm och Arlanda. Hållplatser för stads- och regionbussar finns i nära anslutning till fastigheten och det mesta har du på cykelavstånd i denna cykelstad.

Övrigt

Utgångshyra kr/m2/år:

2220

Hyresinformation:

Tillkommer

Kontakta Annonsör

Edvin Nicholls

Edvin Nicholls