Hållnäsgatan 3

Kontor/Lager, 677 m2, Uppsala

Hyra: Kontakta annonsören

Rymligt kontor med tillhörande höglager i populära Librobäck!
Nu erbjuds möjligheten att hyra detta rymliga kontor med tillhörande modernt höglager om totalt 677 kvm. Kontoret har en effektiv och rumsindelad planlösning med rum i varierande storlek. Här finns också flera rum för lager eller tex mindre produktion samt omklädningsrum. Kontoret erbjuder även en stor social yta som är inrett med pentry. Det unika med detta kontor är att ena delen av kontoret är ett ekyddsrum med tillhörande häftiga ståldörrar. Det nybyggda höglagret erbjuder en stor lageryta om 396 lkvm med generös takhöjd om ca. 7,5 m. Här erbjuds möjligheten att vara med att påverka utfomandet av den stora lagerytan, det finns även möjlighet att bygga till ett entresol som med fördel kan inredas som kontor eller liknande. Höglagret har två ingångar, en entré och en stor port som är tilltänkt för in och utlastning av varor.

På gården finns det gott om parkeringar för personal och kunder, det finns 12 parkeringsplatser som tillhör kontorslokalen där samtliga är utrustade med laddstolpar. Området erhåller blandade verksamheter och har goda kommunikationer till Uppsalas centrum liksom E4:an. Här finns närhet till lunchrestauranger och god service vid Nelins och Mimi Ekholms plats.

Välkommen att kontakta ansvarig mäklare för vidare information och visning!

Omgivning

Omgivning/natur:

Librobäck är ett område med varierande verksamheter såsom mindre verkstäder, högteknologi, kontor och handel.

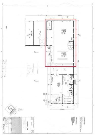
Planlösning

Planlösning:

Lokalerna är uppdelade i en rymligt kontorslokal om 281 kvm samt ett nybyggt höglager om 396 kvm med generös takhöjd. Kontoret om 281 kvm inrymmer en stor öppen entré, åtta rymliga kontorsrum, stor social yta med pentry, ett konferensrum, ett omklädningsrum, tre förråd/lager med tillhörande städskrubb samt två toaletter. Genomgående ett trevligt och effektivt kontor med bra planlösning. Det nybyggda höglagret erbjuder 396 kvm med generös takhöjd, det erbjuds möjlighet att anpassa lokalen efter behov med t.ex. entresol för kontor mm. Lokalen är i dagsläget inrett med två toaletter samt två ingångar varav den ena är en port för in och utlastning.

Kommunikationer

Området har goda kommunikationer med Uppsala Centrum som ligger på ett avstånd om ungefär 4 km. Med bil ligger Bärbyleden även i nära anslutning till E4:an eller Enköping/Västerås.

Kontakta Annonsör

Claes Rietz

Claes Rietz