Dragarbrunnsgatan 13

Butik/Kontor/Kontorshotell, 345 m2, Uppsala, Centrum

Hyra: 1 928 kr/m²/år. Tillkommer

Unikt modern lokal i centrala Uppsala.
Varmt välkommen till Dragarbrunnsgatan 13 och denna topprenoverade och moderna lokal om totalt 345 kvm. Denna lokal är utmärkt utformad för att bedriva kirurgi eller annan typ av vård. Genomgående är det ljusa ytskikt i stilren kulör och golvet är av modern klinker. Lokalen inrymmer i dagsläget flertalet patientrum, kirurgisal, viloavdelning samt personalutrymmen i form av omklädningsrum och WC. Det finns även ett stilrent kök som är utrustat med diskmaskin och rymmer matplats för 6-8 personer. Denna unika lokal erbjuder allt man kan tänka sig önska och måste upplevas på plats.

Det finns även en personalingång genom omklädningsrummet.

Här befinner man sig mitt i centrala Uppsala, i direkt anslutning till lokalen finner du allt som du behöver såsom flertalet restauranger, butiker, livsmedelsbutiker och mycket mer.

Varmt välkommen att kontakta ansvarig mäklare för vidare information.

Omgivning

Omgivning/natur:

I Uppsala Centrum finns allt i både serviceutbud men också grönskande oaser i och omkring stadskärnan. Utbud av service och nöjen samt till goda kommunikationer vid Resecentrum. Gott om gröna promenadstråk längs med Fyrisån och i den intilliggande Stadsparken.

Företag i närheten:

Tack vare det centrala läget erbjuds ett mycket generöst utbud av butiker, restauranger och caféer mm.

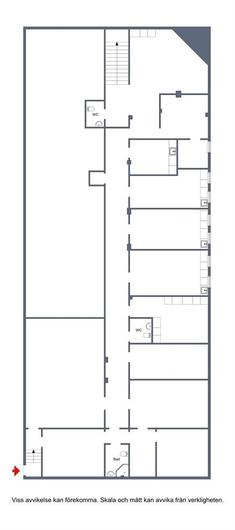
Planlösning

Planlösning:

Källarlokal om totalt 345 kvm inredd för kirurgi och vård. När du kliver in i lokalen möts man av en modern kundtoalett samt öppen och modern kundmottagning. I direkt anslutning till kundmottagningen finns ett rymligt kontorsrum. Vidare är lokalen inredd med flertalet patientrum i varierande storlekar, samtliga patientrum är modernt inredda. Det finns även ett rymligt kök med plats för 6-8 personer. Vidare finns operationssal med tillhörande vårdrum och i anslutning finns det ett vilorum med tillhörande. Slutligen finns ett rymligt omklädningsrum som är inrett med tvättmaskin och torktumlare.

Kommunikationer

Härifrån är det goda kommunikationer med bussar som trafikerar närliggande gator, samt endast 5-10 minuters promenad till Resecentrum!
Det finns även bra gång- och cykelvägar utanför entrén.

Övrigt

Prisinformation:

Högstbjudande

Utgångshyra kr/m2/år:

1928

Hyresinformation:

Tillkommer

Kontakta Annonsör

Edvin Nicholls

Edvin Nicholls