Anna Fabris gata 11

Kontor/Kontorshotell, 163 - 1790 m2, Uppsala, Fyrislund

Hyra: Kontakta annonsören

Toppmoderna ytor med strategiskt läge i Fyrislund!
Söker du en lokal med moderna lösningar och smakfulla färgval, se hit!
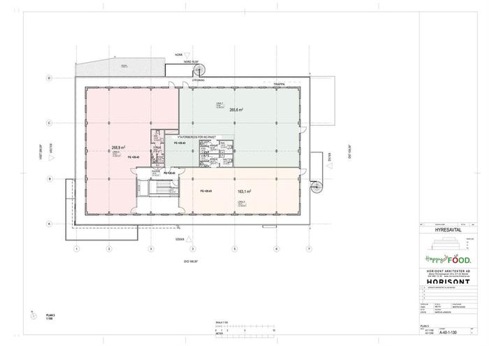
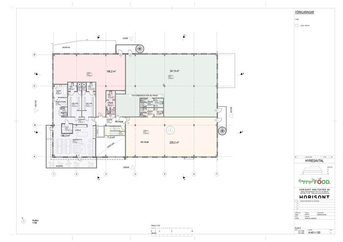
Här erbjuds en modern byggnad i tre plan med fina kontorsytor i mycket bra läge i Fyrislund Totalytan om 1 790 kvm är delbara i olika enheter där den minsta ytan utgör 163 kvm. Hiss finns mellan samtliga plan.
Området har ett strategiskt läge i Fyrislund och nära expansiva Östra Fyrislund samt hela Boländerna. Det är endast några minuter till E4:ans påfart och nära de andra större vägarna kring Uppsala.
Till Uppsalas centrala delar tar du dig enkelt med bil, buss eller cykel då det är mycket bra cykelvägar hela vägen.

Omgivning

Omgivning/natur:

Östra Fyrislund är ett nyetablerat område för industri och logistik med ett utmärkt läge endast ett par minuters bilavstånd till E-4:ans påfart.

Företag i närheten:

Flertalet restauranger finns i de närbelägna områdena Fyrislund och Boländerna. Där finns också Boländernas handelsområde med all service du kan önska.

Planlösning

Byggår:

2022

Planlösning:

Ytorna är under uppbyggnad och kommer vara flexibla från 163 kvm och upp till 1 790 kvm om man hyr alla ytorna.
Nytt, fräscht med smakfulla färgval och moderna lösningar.
Hiss mellan samtliga plan.

Kommunikationer

Busshållplats finns på nära gångavstånd och du har direkt närhet till E4:an, perfekt för dig som är bilburen och pendlar eller reser i jobbet norr- eller söderut. Tack vare närheten till city finns fina gång- och cykelvägar och du cyklar till centrala Uppsala på mindre än 20 minuter.

Kontakta Annonsör

Zouhair Ayed

Zouhair Ayed