Dalgränd 10
Bollmora, Tyresö, 209 - 418 m2
Lokal för Butik/Showroom eller annan publik verksamhet i direkt anslutning till Tyresö Centrum BESKRIVNING Nu finns möjligheten att etablera din...
Kontor, 212 m2, Tyresö, Bollmora
Hyra: 1 250 /m²/år
Kostnadseffektiva lokaler i Bollmora, 3 min från Tyresö C.
BESKRIVNING
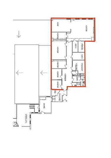
3 minuter från Tyresö Centrum hyr vi just nu ut ett kontor om ca 212 kvm.
Kontoret är idag rumsindelat med bland annat 6 kontorsrum, 2 konferensrum, kök, 2 WC varav en med dusch. Lokalen kan även anpassas till en mer öppen planlösning om behovet finns. Se alternativ planlösning för möjligheter.
Bredband om 2000 mbit/s finns indraget till fastigheten. För nyttjande av bredbandet tillkommer en kostnad.
En gemensam parkering finns för fastighetens hyresgäster.
BOKA VISNING / KONTAKT
Vänligen respektera säljarens önskemål om bokad visning.
För mer information eller visning av objektet, hör av er till Locus Advice och Joanna Eriksson genom kontaktformuläret eller 08 - 558 094 43.
Växeln 08 - 558 094 40 är öppen helgfria vardagar mellan 08.30-17.00.
LOCUS ADVICE
Locus Advice är ett konsultbolag i Stockholm med fokus på kommersiella lokaler och fastigheter. Vi arbetar med lokaluthyrning, lokalöverlåtelser, projektuthyrning samt försäljning av kommersiella fastigheter och BRF-lokaler.
Genom etablerade samarbeten med både stora och små fastighetsägare har vi tillgång till ett stort utbud av lokaler utöver vad vi kan marknadsföra i egen regi. Via dessa samarbeten kan vi med stor sannolikhet hjälpa er hitta den lokal ni söker efter.
Vi kan också hjälpa hyresgäster att komma ur sina hyreskontrakt i förtid.
1250