Koppargatan 4
Tranås, 3627 m2
Rymlig lagerlokal med lastkaj, markport samt stor markyta i Tranås Välplanerad lagerlokal om 3 627 kvm, belägen på markplan mot...
Dokument
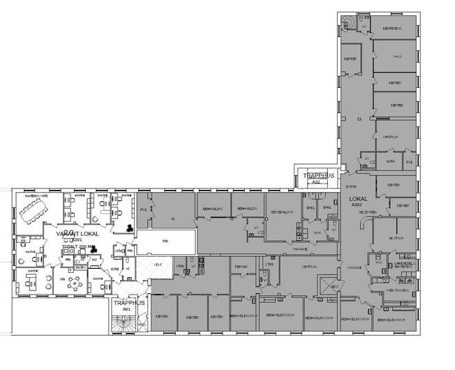
Planritning A302 Våning 3 Hus A.pdfKontor, 728 m2, Tranås
Hyra: Kontakta annonsören
Centralt belägen kontorsfastighet ledig kontorslokal om totalt 728 kvm Lokalen ligger på plan 3 och erbjuder kontorsindelad planlösning med faciliteter såsom kök/pentry och WC. Då det finns flera lediga lokaler finns stora möjligheter att slå samman ytor till större enheter och anpassa lokaler efter verksamhetens unika behov. Parkering går att ordna via tilläggsavtal.
Tranås är strategiskt placerat mitt i Sverige mellan Jönköping och Linköping. Centrala Tranås ligger med närhet till riksväg 32 som ansluter till E4 och erbjuder ett levande centrum med stort serviceutbud av butiker och restauranger samt härliga grönområden kring Östanåparken och Svartån. Det finns goda kollektivtrafikförbindelser med buss och tåg.
AB Tranås Skinnberedning, Optimera, Coop, Mekonomen och Melin & Carlsson Hydraulic AB
Parkeringsmöjligheter/garage:Möjlighet att teckna ett tilläggsavtal för parkering
Skyltläge:Bra exponering av skyltläge
Vägbeskrivning:Närhet till riksväg 32 som ansluter till E4
Hackspetten 21
Byggår:1960
Våningsplan:3 av 4
Planlösning:Se planritning bland bilder eller ladda ned PDF.
Goda kollektivtrafikförbindelser med buss och tåg
Levande centrum med ett stort serviceutbud av butiker och restauranger
Ja
Kontraktlängd:Förhandlingsbart
Kontrakttyp:Förstahandskontrakt
Tillträde:Omgående.