Vasagatan 1
Tranås, 294 m2
Unik kontorslokal med stor potential i centrala Tranås Nu finns enunik kontorslokal om 294 kvmatt hyra i hjärtat avcentrala Tranås....
Dokument
Städet 3 - Del av markplan, ca 3627 kvm.pdfIndustri/Kontor/Lager, 3627 m2, Tranås
Hyra: Kontakta annonsören
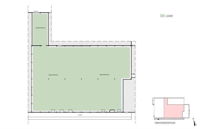
Välplanerad lagerlokal om 3 627 kvm, belägen på markplan mot gården samt lastkaj mot andra sidan, anpassad för effektiv logistik och lagring. Med en generös takhöjd på 5,9 meter, lastkaj och möjlighet att hyra upp till 2 000 kvm markyta, är detta en utmärkt lösning för verksamheter som behöver både rymliga inomhusytor och flexibla utomhuslager.
Lokalens höjdpunkter
Stort lagerutrymme: 3 627 kvm med öppen planlösning och 5,9 meter i takhöjd.
Effektiva lastningsmöjligheter: Lastkaj med fem portar för smidig in- och utlastning. Samt markport
Flexibel markyta: Upp till 2 000 kvm asfalterad yta kan hyras för lagerhållning, uppställning av fordon eller maskiner. Möjlighet att inhägna och anpassa ytan efter verksamhetens behov.
Generösa rangerytor: Stora asfalterade ytor för uppställning och rangering direkt utanför byggnaden.
Fördelar med fastigheten
Enkel tillgänglighet: Direktaccess från Koppargatan och ett smidigt läge för transporter och distribution.
Strategisk placering: Belägen i Tranås Södra industriområde, endast 3 km söder om Tranås och nära riksväg 32, vilket ger snabb anslutning till E4 och andra viktiga transportleder.
Området
Tranås är strategiskt beläget mellan Jönköping och Linköping, vilket gör det till en idealisk plats för verksamheter med nationell räckvidd. Industriområdet präglas av logistik, lager och verkstäder, och i närområdet finns ett enklare serviceutbud, bland annat det populära Koppargatans Kök.
Varför välja denna lokal?
Perfekt för lager- och logistikverksamheter.
Stora, öppna ytor med anpassningsmöjligheter.
Kombination av inomhuslager och utomhusytor för en komplett lösning.
Välkommen att kontakta oss för mer information eller för att boka en visning!
Lindbom och Svensson Mat AB, Bosch Thermoteknik AB, Tranås Åkeri AB, Mässbolaget AB och Besikta
Parkeringsmöjligheter/garage:Fri parkering
Vägbeskrivning:Närhet till riksväg 32 som ansluter till E4
Städet 3
Byggår:1979
Våningsplan:1 av 2
Planlösning:Se planritning bland bilder eller ladda ned PDF.
Goda kollektivtrafikförbindelser med buss och tåg
Enklare serviceutbud av lunchrestauranger finns i närområdet, bland annat populära Koppargatans kök.
5,9 m
Lokalen kan nås via:Lastkaj med 3 portar samt egen entré till kontorsdelen
Kontraktlängd:Förhandlingsbart
Kontrakttyp:Förstahandskontrakt
Tillträde:Enligt överenskommelse