Dokument

A-49-1-1

Gärdevägen 3

Industri/Kontor/Lager, 646 - 1094 m2, Sundsvall, Gärde

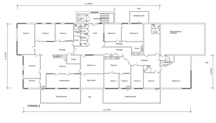
Nu finns möjlighet att hyra kontor om 646 kvm på våningsplan 2 i Gärde, Sundsvall. Lokalen har ett fantastiskt skyltläge och kan anpassas efter din verksamhets behov. Perfekt för dig som vill ha en lättillgänglig arbetsplats.

Till lokalen finns också möjlighet att hyra ett garage som nås via en interntrappa.

Kontakta oss för mer information och visning!

Omgivning

Större företag i området är bland annat Enerco, Truckwash och Ocab.

Kommunikationer

Allmänna kommunikationer finns i form av lokal busstrafik. Större trafikleder (E4) finns på cirka en
kilometers avstånd. Ca 4 km till Sundsvall City och tågstation. Till Sundsvall/Timrå Airport är det ca 1,3 mil.

Service

Service finns närmast i Bydalens Centrum. Till Birsta Handelsområde är det ca 3.5 km.

Övrigt

Övrigt

Gott om parkeringsplatser.
Bra skyltläge vid E4.
Hiss finns i fastigheten.

Kontakta Annonsör

Matilda Rydstedt

Matilda Rydstedt