Dokument

Planlösning

Trädgårdsgatan 12

Kontor, 400 - 1238 m2, Strängnäs

Hyra: Kontakta annonsören

Etablera ert nya kontor i centrala Strängnäs!
Flexibla kontorslokaler i centrala Strängnäs med fantastiska parkeringsmöjligheter. Här finns möjligheten att hyra skräddarsydda lokaler som moderniseras och anpassas specifikt för eran verksamhet. Det fantastiska läget erbjuder en enkel tillgänglighet och goda möjligheter för skyltning för maximal exponering. I denna fastighet blir ni granne med bl.a. Systembolaget och Ica Bengtsson som bidrar till ett naturligt och ständigt flöde av människor.

Fler och fler företag väljer att etablera sig i Strängnäs kommun som med sina snart 40 000 invånare har en betydligt snabbare tillväxt i jämförelse med Sverigemedel.

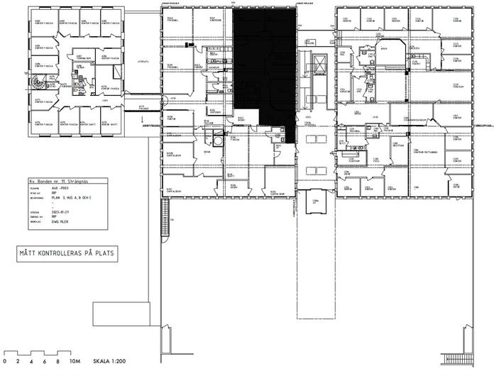
Lokalerna är idag utformade som cellkontor i varierande storlekar, konferensrum och generösa personalutrymmen. I ena delen av lokalerna finns det även tillgång till en trevlig takterass. Det finns dock stora möjligheter att bygga om och anpassa lokalerna utifrån era behov och förutsättningar. Idag motsvarar lokalens area hela 1 238kvm, men det finns möjlighet att hyra mindre ytor från ca 400kvm. Se bifogad ritning för närmre specifikation av lokalens utformning.

Kontakta oss gärna för mer information och visning av lokalen!
Tillträde sker enligt överenskommelse.

Omgivning

Omgivning/natur:

Fastigheten är belägen i centrala Strängnäs med närhet till shopping, restauranger, närservice och den populära gästhamnen. I området finns det mängder med olika företag inom olika segment. Ett utmärkt läge för företag som vill erbjuda sina kunder och anställda lättillgängliga lokaler.

Parkeringsmöjligheter/garage:

Den stora kundparkeringen intill lokalerna erbjuder fantastiska parkeringsmöjligheter för både personal och kunder.

Planlösning

Byggår:

1969

Våningsplan:

2

Kommunikationer

Goda kommunikationsmöjligheter i form av bussar och närhet till tågstationen. Med några minuters bilfärd nås även motorväg E20.

Övrigt

Tillträde:

Enligt överenskommelse

Kontakta Annonsör

Aram Kevorkov

Aram Kevorkov