Dokument

Ritning

Storgatan 13

Kontor, 280 m2, Strängnäs

Hyra: Kontakta annonsören

Kontor i centrala Strängnäs med potential
Nu finns det möjlighet att hyra en stor och ljus kontorslokal med ett centralt läge mitt i Strängnäs. Fastigheten är belägen på den vältrafikerade Storgatan med närhet till gästhamnen, domkyrkan och all form av närservice i centrum. Här kommer ni att ha Vårdcentralen Mäster Olof som granne.

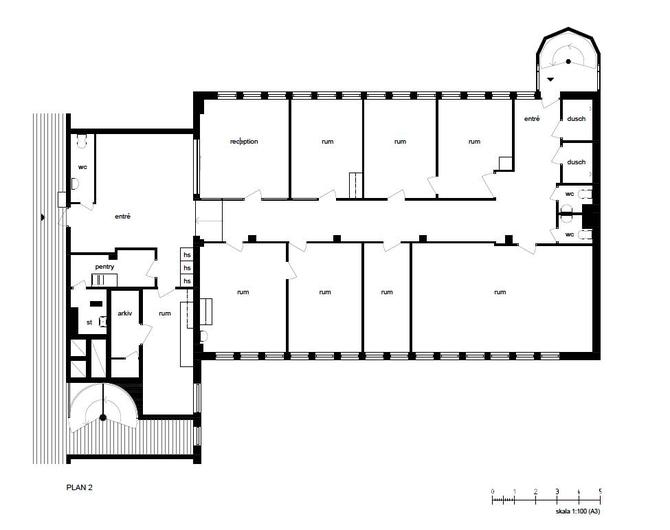
Rummen i lokalen är främst byggda med lättväggar vilket ger en möjlighet att skapa en öppen planlösning och anpassa lokalen utefter era behov. Lokalen har tidigare nyttjats som en vårdmottagning, vissa rum är därför utrustade med vatten och avlopp. Vidare finns tillgång till ett antal toaletter samt dusch och omklädningsrum. Lokalen är anpassad för funktionshindrade.

Tillträde sker enligt överenskommelse, kontakta oss gärna för en visning!

Omgivning

Omgivning/natur:

Fastigheten ligger intill Strängnäs gästhamn med närhet till all form av närservice i centrum.

Parkeringsmöjligheter/garage:

I centrala Strängnäs finns ett gott utbud av gatuparkeringar och större gratisparkeringar vid hamnen.

Planlösning

Byggår:

1973

Våningsplan:

3

Kommunikationer

God kommunikation med bussar och närhet till Strängnäs Centralstation.

Övrigt

Tillträde:

Enligt överenskommelse

Kontakta Annonsör

Aram Kevorkov

Aram Kevorkov