Armaturvägen 3D
Stockholm, 94 - 269 m2
Lediga kontorsytor med stor flexibilitet och möjlighet att anpassa efter önskemål Här finns en ledig kontorslokal om 269 kvm som...
Dokument
Ritning_Nödesta 13-8.pdfIndustri/Kontor/Lager, 450 - 2000 m2, Stockholm
Hyra: Kontakta annonsören
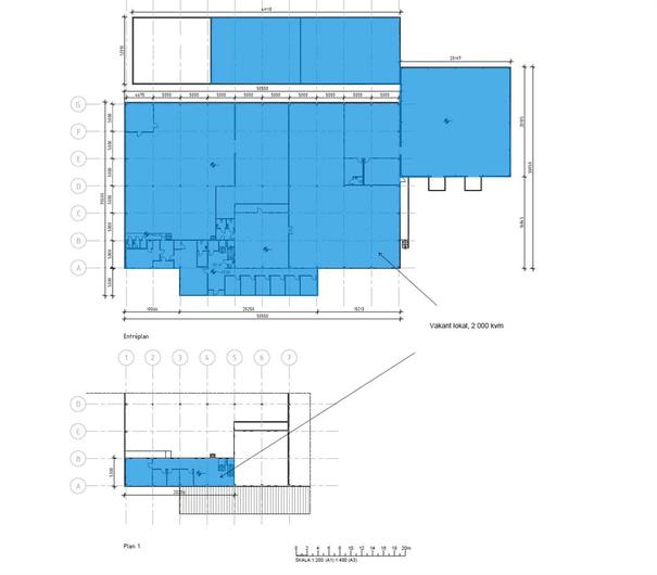
Nu finns möjligheten att hyra enmodern och flexibel lagerlokal med tillhörande kontorsytor och faciliteteri expansiva Västerhaninge. Lokalen omfattar totaltupp till ca 2 000 kvm, varav cirka300 kvm är kontor och personalytor. Det finns möjlighet atthyra från 450 kvm upp till 2 000 kvm, exempelvis genom att dela av delar av lagret efter behov. Till fastigheten hör även engenerös markyta om ca 1 500 kvm.
Lagerytor
Total lageryta:Ca 1 700 kvm på markplan (möjlighet att hyra del av ytan från 450 kvm).
Takhöjd:Cirka 5 meter, vilket möjliggör både lagring och exempelvis showroom i en del och verkstad i en annan.
Lastmöjligheter:4 markportar i dagsläget, med möjlighet att öppna upp till lasthus för effektiv logistik.
Kontor och faciliteter
Kontorsarea:Ca 300 kvm i gott skick.
Planlösning:Flexibel med en kombination av kontorsrum, mötesrum och öppna arbetsytor.
Faciliteter:WC, pentry, kök, omklädningsrum och dusch.
Möjliga användningsområden
Lokalerna lämpar sig särskilt väl för envälrenommerad bilverkstad eller bilprovning.
Även annan typ avlager- eller serviceverksamhetmed behov av uppställningsytor har stor nytta av fastighetens funktionella utformning och mark.
Läge och omgivning
Fastigheten ligger i Västerhaninge, strategiskt placerad söder om Stockholm. Härifrån nås enkelt väg 73, som knyter ihop Nynäshamn med huvudstaden. Västerhaninge station ligger nära och erbjuder pendeltågsförbindelser mot både Nynäshamn och Stockholms innerstad. I Västerhaninge centrum finns ett brett serviceutbud med butiker, restauranger och annan service - vilket gör läget attraktivt både för företag och anställda.
Schneider electric, CCL, Woody, Falck, Greif
Parkeringsmöjligheter/garage:1 500 kvm uppställningsyta
Vägbeskrivning:Nära anslutning till riksväg 73
Haninge Nödesta 13:8
Byggår:2015
Planlösning:Se bilder/PDF.
Goda kollektivtrafikförbindelser med buss och pendel till Stockholm med omnejd
Brett serviceutbud i Haninge och Jordbro
5 m
Lokalen kan nås via:Kundentré samt och 4 markportar
Kontraktlängd:Förhandlingsbart
Kontrakttyp:Förstahandskontrakt
Tillträde:Omgående