Vallgatan 9

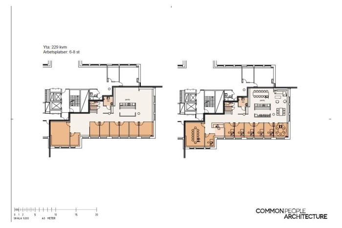
Kontor, 229 m2, Stockholm, Solna

Hyra: 2200 kr/kvm/år

Trivsam och ljus lokal med vita väggar och ett genomgående textilmatta på golv. Flertalet arbetsrum, konferensrum samt toalett och RWC. De flesta arbetsrum och konferensrum har textilmatta på golven som skapar en trivsam akustik i rummet. Lokalen nås via hiss eller trappor. I byggnaden finns det både hotell- och konferensmöjligheter och en uppskattad lunchrestaurang.

I nuvarande utförande har lokalen 6-8 arbetsplatser men med relativt små åtgärder kan upp till 15 arbetsplatser tillskapas i en öppen planlösning, se alterantiv planlösning.

Järva Krog blandas av ett brett restaurangutbud, service, butiker, bostäder och kontor. Varmt välkommen att besöka lokalen - kontakta oss via mejl för att boka en visningstid.

Omgivning

Järva Krog är en småskalig kvartersstad med plats för både företag och boende. Här blandas av ett brett restaurangutbud, service, butiker, bostäder och kontor intill ett stort grönområde.

Förgyll lunchrasten med en promenad, lunch eller picknick i Ulriksdals naturreservat som du når på endast några få minuters promenad.

Kommunikationer

Pendeltåg

Ulriksdal station ligger nära Järva Krog och trafikeras av Pendeltåg linje 40 och 41.
Tågen går frekvent och tar ca 10 minuter till Stockholm City.

Busslinjer
Flera busslinjer passerar Järva Krog, vilket gör området lättillgängligt från olika delar av Stockholm:

176, 177, 526, 690, 516 Regionala och lokala bussar som förbinder Järva Krog med bl.a. Kista, Danderyd, Sundbyberg och Cityterminalen.
Flygbussarna Direktförbindelse till Arlanda flygplats.
FlixBus Långdistansbussar till andra städer i Sverige och Europa.

Tunnelbana

Närmaste tunnelbanestationer är Solna centrum och Näckrosen, båda på Blå linjen.
Dessa ligger ca 10 15 minuters promenad eller en kort bussresa från Järva Krog

Gång- och cykelvägar

Området är välförsett med gångvägar och cykelbanor, vilket gör det enkelt att ta sig till fots eller med cykel från närliggande områden som Arenastaden, Solna Business Park och Råsunda.

Service

Pendeltåg

Ulriksdal station ligger nära Järva Krog och trafikeras av Pendeltåg linje 40 och 41.
Tågen går frekvent och tar ca 10 minuter till Stockholm City.

Busslinjer
Flera busslinjer passerar Järva Krog, vilket gör området lättillgängligt från olika delar av Stockholm:

176, 177, 526, 690, 516 Regionala och lokala bussar som förbinder Järva Krog med bl.a. Kista, Danderyd, Sundbyberg och Cityterminalen.
Flygbussarna Direktförbindelse till Arlanda flygplats.
FlixBus Långdistansbussar till andra städer i Sverige och Europa.

Tunnelbana

Närmaste tunnelbanestationer är Solna centrum och Näckrosen, båda på Blå linjen.
Dessa ligger ca 10 15 minuters promenad eller en kort bussresa från Järva Krog

Gång- och cykelvägar

Området är välförsett med gångvägar och cykelbanor, vilket gör det enkelt att ta sig till fots eller med cykel från närliggande områden som Arenastaden, Solna Business Park och Råsunda.

Kontakta Annonsör

Martin Berg

Martin Berg