Vikingagatan 26
Vasastan, Stockholm, 35 m2
Mysig kontorslokal i Birkastan 35 kvm Ljus och trivsam lokal med genomgående planlösning på populära Vikingagatan i hjärtat av charmiga...
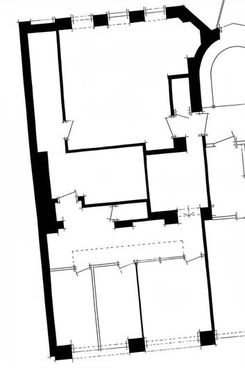
Kontor, 86 m2, Stockholm, Vasastan
Hyra: 3 000 /m²/år
Kontor med allra bästa läge!
Kontor på Torsgatan 43 i hjärtat av Vasastan med ett mycket attraktivt och vältrafikerat läge. Området erbjuder ett stort utbud av restauranger, caféer och butiker samt närhet till Vasaparken som inbjuder till trevliga promenader och avkoppling. Kommunikationsmöjligheterna är utmärkta med flera busslinjer och tunnelbana endast hundra meter från fastigheten samt pendeltåg vid Odenplan på fem minuters promenadavstånd.
Trevligt kontor med stora möjligheter fördelat på tre rum med fönster i två väderstreck, vilket ger ett härligt ljusinsläpp.
Ytskikten åtgärdas i samband med tillträde efter överenskommelse med fastighetsägaren. Här finns goda förutsättningar att skapa ett representativt kontor på ett av Vasastans allra bästa lägen.
Hyresvärd: Brf
Hyra: 21 500 kr / månad exkl. moms
Fastighetsskatt: 1 344 kr / månad exkl. moms
Hyresgaranti: Deposition
Yta: 86 kvm
Nextor Group
Anders Ölve
Telefon: 076 340 11 11
Mail: [email protected]
3000