Dokument

Mileway - Stensätra 7 Skärholmen.pdf

Strömsätravägen 16

Industri/Kontor/Lager, 5290 m2, Stockholm, Sätra

Hyra: Kontakta annonsören

Komplett lager- och produktionsfastighet med hög elkapacitet och stora rangerytor på utmärkt läge i Sätra

Nu finns möjligheten att hyra en komplett och flexibel lagerfastighet om totalt5 290 kvmiSätra industriområde, endast 10 km söder om centrala Stockholm - meddirekt anslutning till E4/E20och goda kollektivtrafikförbindelser.

Fastigheten erbjuder:Lager och produktion - 4 330 kvm


  • Stora, öppna ytor medtakhöjd om 5-6 meter


  • Två lasthus samt lastkajer med totaltsju portarför effektiv logistik


  • Möjlighet att installeramarkportvid behov


  • Hög elkapacitet (ca 800 A)- lämpar sig utmärkt för produktionsverksamhet


Kontor - 960 kvm


  • Fördelat på tre plan medhiss och trappa


  • Funktionella och flexibla ytor med mötesrum,pentry, matsal, dusch, omklädningsrum och WC


Gårdsyta - 4 000-5 000 kvm


  • Inhägnat område förlastning, uppställning eller parkering


Läget - Sätra industriområde

Fastigheten ligger i ettetablerat företagsområdemed närhet till bådeSätra centrumochSkärholmen, där det finns ett brett serviceutbud med butiker och restauranger. Området är logistikvänligt, med snabb access till stora trafikleder ochgoda kommunikationer via tunnelbana och buss.

Omgivning

Företag i närheten:

Opus Bilprovning, Swedol, Areco Direct, Peugeot och Dagab

Parkeringsmöjligheter/garage:

Goda parkeringsmöjligheter på fastigheten

Vägbeskrivning:

Direkt anslutning till E4/E20

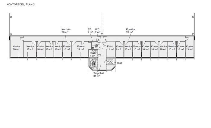
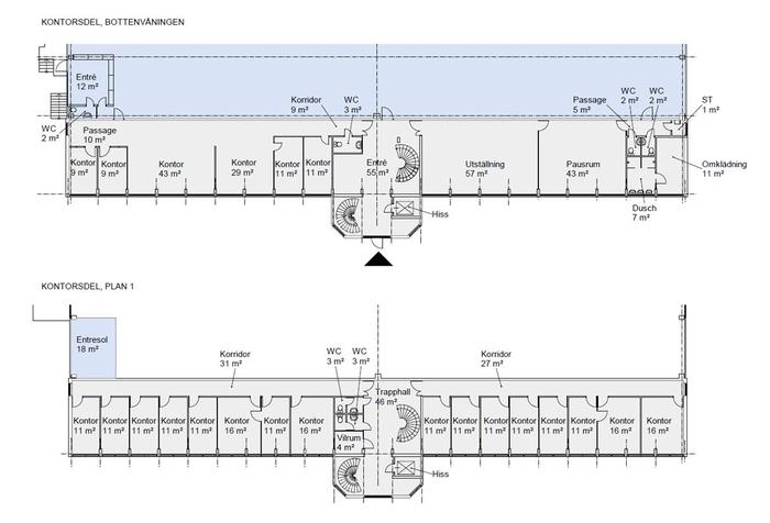
Planlösning

Fastighetsbeteckning:

Stensätra 7

Byggår:

1988

Planlösning:

Planritning finns bland bilder/PDF.

Kommunikationer

Goda kollektivtrafikförbindelser med Sätra tunnelbanestation endast ca 600 m bort

Service

Närservice:

Brett serviceutbud av restauranger, butiker, gym, matbutiker och apotek i Sätra centrum samt Skärholmen centrum

Övrigt

Takhöjd:

5 m

Lokalen kan nås via:

2 lastkajer med 7 portar + 2 lasthus

Hiss:

Ja

Miljöcertifiering:

BREEAM

Den här certifieringen är världens mest använda. Breeam används för befintliga och nybyggda kommersiella byggnader. 2013 kom en svensk version som utgår från svensk lagstiftning, svenska metoder och arbetssätt. Breeam är en heltäckande certifiering med många indikatorer. Här görs bedömningar inom projektledning, energianvändning, inomhusklimat, vattenhushållning, avfallshantering, markanvändning, påverkan på närmiljön, byggmaterial och föroreningar samt byggnadens läge i förhållande till allmänna kommunikationsmedel.

Källa

Kontraktlängd:

Förhandlingsbart

Kontrakttyp:

Förstahandskontrakt

Tillträde:

Omgående

Kontakta Annonsör

Besart Ferizi

Besart Ferizi