Djurgårdsslätten 45
Östermalms Stadsdelsområde, Stockholm, 23 m2
Synnerligen unik möjlighet att förvärva byggnad och arrende på en utav Stockholms allra mest besökta och eftertraktade områden! Beläget på...
Butik/Kontor, 184 m2, Stockholm, Östermalms Stadsdelsområde
Hyra: 5 997 /m²/år
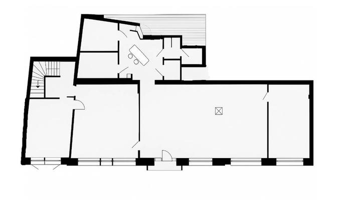
* Välkommen till detta representativa och mycket fräscha kontor i anrik fastighet på Runebergsgatan på Östermalm. Lokalen omfattar ca 184 kvm och erbjuder en trivsam och effektiv planlösning med tre större rum, två mindre rum som idag används som telefonrum, påkostat kök samt två wc.
Utöver detta finns ett praktiskt loft ovan ett förråd med dubbeldörr direkt ut mot gatan - perfekt för in- och utlastning eller extra förvaring. Lokalen har även fem stora fönsterpartier som ger ett härligt ljusinsläpp och en trevlig atmosfär.
En lokal med både charm och funktionalitet, idealisk för företag som söker en representativ adress på Östermalm.
Ytan 184 kvm ( plus loft ca18kvm )
Hyra ca 92 000 kr/mån ex moms
Fast.skatt ca 6000 kr/mån ex moms
Överlåtelsekostnad 295 000 kr
För intresse och visning kontakta:
Fastighetsmäklare
Johan Fahlander
Kontor 08-30 92 00 Mobil 070-467 88 79
Mail [email protected]
Fjärrvärme
Pris/överlåtelseavgift:295 000
Utgångshyra kr/m2/år:5997