Ranhammarsvägen 20

Kontor, 286 m2, Stockholm, Ulvsunda Industriområde

Hyra: Kontakta annonsören

Modern och exklusiv kontorslokal på Ranhammarsvägen 20, Bromma - 286 kvm i toppskick!
Välkommen till en mycket stilren kontorslokal i hjärtat av Bromma. Denna yteffektiva och ljusa lokal på plan 2 omfattar 286 kvm och erbjuder en perfekt arbetsmiljö för ditt företag.

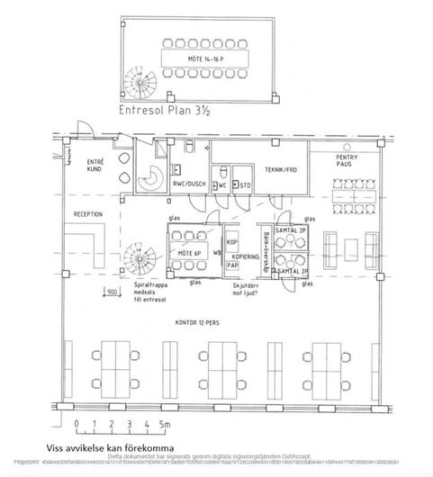
Lokalen är utrustad med två privata kontor, ett luftigt öppet kontorslandskap, ett stilrent mötesrum samt ett konferensrum på entresolplan - idealiskt för större möten och presentationer. Köket är rymligt och exklusivt, utrustat med en modern glaskyl för förfriskningar.

Tillgång till toalett, RWC och ett praktiskt förråd gör arbetsdagen smidig. Lokalen ligger i ett väl underhållet hus med hiss som når direkt från markplan, samt parkeringsplatser vid entrén för enkel access.

Perfekt för företag som vill finnas i ett modernt, funktionellt och representativt kontorsläge. Kontakta oss idag för visning och mer information!

Omgivning

Omgivning/natur:

Ranhammarsvägen 20 ligger i hjärtat av Bromma, ett attraktivt och välutvecklat område med god kommunikation och närhet till både stadens puls och natursköna områden. Området präglas av moderna kontorsbyggnader, företagsetableringar och ett aktivt näringsliv, vilket skapar en stimulerande arbetsmiljö.

Med närhet till Bromma blocks finns det goda möjligheter till service, restauranger och affärer i nära anslutning. Kommunikationerna är utmärkta, med närhet till både tunnelbana, bussar och förbindelser mot Stockholm city och Arlanda flygplats. Parkeringsmöjligheter finns lätt tillgängligt vid fastigheten, och det är enkelt att ta sig till och från arbetsplatsen.

Ranhammarsvägen 20 är ett utmärkt läge för företag som vill kombinera ett professionellt kontorsläge med bekvämligheter och god tillgänglighet i det växande Brommaområdet.

Planlösning

Byggår:

1946

Våningsplan:

2

Övrigt

Tillträde:

Tillträde enligt överenskommel

Kontakta Annonsör

Jesper Lind

Jesper Lind