Dokument

Planritning Pelaren1-Plan 5 -MÖBLERAD 2025-10-23

Pastellvägen 6

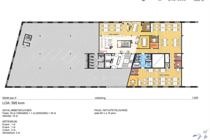
Kontor, 595 m2, Stockholm, Johanneshov

Hyra: 4000 kr/kvm/år

Ljus och flexibel kontorslokal i toppmodern fastighet – nära tunnelbana och service

Välkommen till denna toppmoderna fastighet på Pastellvägen 6! Här erbjuds en kontorslokal på plan 5 med hög standard, fräscha ytskikt och en arbetsmiljö som kombinerar komfort med funktion.

Lokalen har stora fönsterpartier som ger ett generöst ljusinsläpp och skapar en trivsam atmosfär. Mötesrummen håller hög klass och lokalen är flexibel, vilket gör det möjligt att anpassa planlösningen efter era specifika behov.

Fastigheten har en representativ entréhall, stora hissar och ett garage med parkeringsmöjligheter för smidig access. I husets restaurang serveras dagligen varierande luncher perfekt för både personal och besökare.

Miljöklassad enligt BREEAM-SE "Very Good", vilket innebär ett hållbart val för framtiden. Från tunnelbanestation Globen eller Skärmarbrink når ni kontoret med en kort promenad genom parken ca 5 minuter.

Toppmodern fastighet med hög komfort
Ljus lokal med stora fönsterpartier
Flexibel planlösning anpassas efter era behov
Mötesrum av hög kvalitet
Garage och restaurang i huset
Miljöklassad enligt BREEAM-SE
Nära tunnelbana 5 min promenad från Globen eller Skärmarbrink

Kontakta oss gärna för mer information eller för att boka en visning!

Kommunikationer

TIllgängligt läge i Söderstaden, 5 min till Skärmarbrink T-bana samt Blåsut T-bana och Globen T-bana.

Service

TIllgängligt läge i Söderstaden, 5 min till Skärmarbrink T-bana samt Blåsut T-bana och Globen T-bana.

Kontakta Annonsör

Maria Palmén

Maria Palmén