Dokument

Ritningar Parmvägen 10A

Parmvägen 10A

Industri/Kontor/Lager, 1720 m2, Stockholm

Hyra: Kontakta annonsören

Egen fastighet intill Norrortsleden

Effektivt lager och kontor om ca 1720 kvm med lastkajer från två håll i Täby.

BESKRIVNING

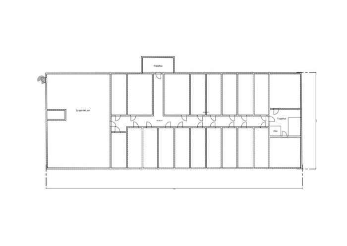
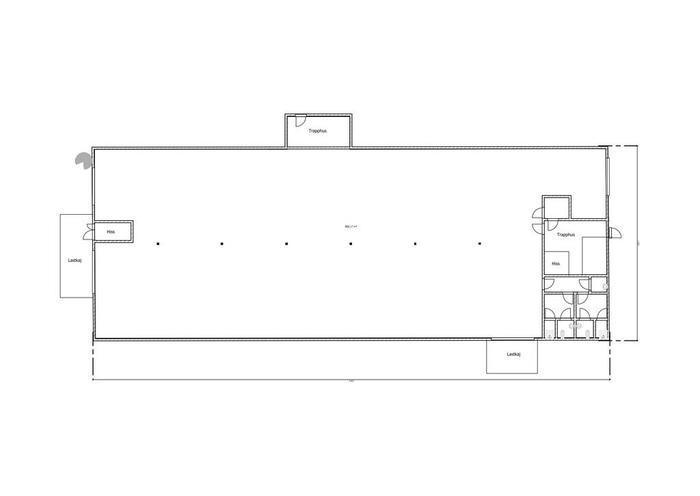
Välkommen till Parmvägen 10A i Täby - en rymlig och flexibel lagerlokal med två inlastningar via lastkajer. Takhöjden är ca 6 meter till bjälklag, vilket ger goda lagermöjligheter (viss påverkan från ventilation och armaturer förekommer).

Markplan omfattar ca 800 kvm lager samt ett entresol om ca 150 kvm. Övre plan om ca 800 kvm nås via trappa och varuhiss och kan användas för lager eller kontor.
Utomhusytan omfattar ca 2000 kvm.

Fastigheten är belägen i ett modernt och attraktivt verksamhetsområde med etablerade bolag som grannar, vilket skapar ett starkt affärsklimat. 

En flexibel och välbelägen lokal med goda anpassningsmöjligheter.

VISNING/KONTAKT

Vänligen respektera säljarens / hyresvärdens önskemål om bokad visning.

För mer information eller visning av objektet, hör av er till Locus Advice genom kontaktformuläret eller ring Tim Ringdahl Liljegren på tel 08-558 094 41.


Växeln är öppen helgfria vardagar mellan 08.30-17.00
Locus Advice tel 08-558 094 40

LOCUS ADVICE

Locus Advice är ett fastighetskonsultbolag med fokus på kommersiella fastigheter och lokaler.
Vi arbetar med


  • Lokaluthyrning

  • Lokalöverlåtelser 

  • Fastighetsöverlåtelse

  • Transaktionsrådgivning

  • Värdering

  • Projektledning

  • Vi representerar även hyresgäster som vill ha hjälp med sitt lokalsökande.


Genom etablerade samarbeten med både stora och små fastighetsägare har vi tillgång till ett stort utbud av lokaler utöver vad vi kan marknadsföra i vår egen regi. Via dessa samarbeten kan vi med stor sannolikhet hjälpa er hitta den lokal ni söker efter.

Kontakta Annonsör

Tim Liljegren

Tim Liljegren