Vikingagatan 26
Vasastan, Stockholm, 35 m2
Mysig kontorslokal i Birkastan 35 kvm Ljus och trivsam lokal med genomgående planlösning på populära Vikingagatan i hjärtat av charmiga...
Kontor, 137 m2, Stockholm, Vasastan
Hyra: 3 500 /m²/år
Denna kontorslokal består av ett unikt kulturhus i två plan belägen på en vacker innergård på Luntmakargatan med tillgång till uteplatser. Fastigheten är ett tidigare stall med stora stallportar in till lokalen.
Lokalen är genomgående mycket gott skick efter en nyligen genomförd renovering.
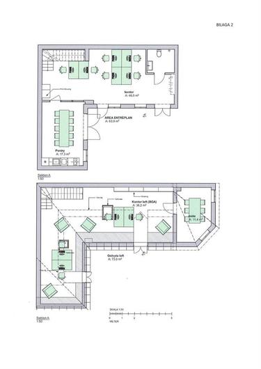
Kontorets yta är fördelat på två plan. Entreplan består av en öppen kontorsyta samt stort kök med konferensbord, badrum i marmor med wc och dusch. Övre plan består av ett öppet kontor med charmiga takbjälkar och snedtak samt två separata mindre kontorsrum.
Ytan 137 kvm ( 64 kvm & 73 kvm)
Hyra 39 800 kr/mån ex moms
Fast.Skatt 3 500 kr/mån
Överlåtelsekostnad 250 000 kr
Nextor Group AB
[email protected]
250 000
Utgångshyra kr/m2/år:3500