Dokument

Planlösning Klara Norra Kyrkogata 31 - 837 m² (ALT 1)
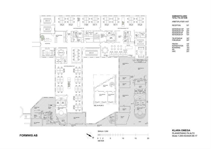
Planlösning Klara Norra Kyrkogata 31 - 837 m² (ALT 2)

Klara Norra Kyrkogata 33

Kontor, 837 m2, Stockholm, Stockholm CBD

Hyra: Kontakta annonsören

Skräddarsytt nyrenoverat kontor i hjärtat av CBD - utformat för er verksamhet!
Välkommen till en modern och representativ kontorslokal på bästa läge i centrala Stockholm, Klara Norra Kyrkogata 31!
Här erbjuds en ljus och flexibel arbetsmiljö med närhet till stadens puls, utmärkta kommunikationer och ett brett utbud av service. Perfekt för företag som värdesätter ett professionellt och inspirerande kontor i hjärtat av city.

Upptäck en flexibel och representativ kontorslokal om 837 m² på plan 4 på attraktiva Klara Norra Kyrkogata 31 - en perfekt plats för företag som vill skapa en inspirerande arbetsmiljö i centrala Stockholm.

När ni kliver genom fastighetens nyinstallerade grindar möts ni av digitala informationsskärmar - en möjlighet att synas på ett modernt och professionellt sätt.
Därefter passerar ni den nyrenoverade innergården, en ljus och trivsam oas som bjuder in till avkopplande kaffepauser i solen eller produktiva lunchmöten under den charmiga pergolan.
Entrén är utrustad med ett smart låssystem som öppnas via app och dörröppnare, vilket ger både säkerhet och bekvämlighet.

Kontorslokalen finns på plan 4 och erbjuder öppna ytor och många fönster som ger ett fantastiskt ljusinsläpp och skapar en luftig och välkomnande atmosfär.
lokalen är idag stomren, vilket innebär att det möjliggör att man som hyresgäst kan forma sitt nästa kontor och anpassa planlösning och utformning i samråd med hyresvärden, så att lokalen skräddarsys efter just ert företags behov.
Oavsett om ni önskar en öppen planlösning eller flera kontorsrum och mötesrum, erbjuder fastighetens konstruktion stor flexibilitet för att skapa en optimal arbetsmiljö.

Ventilation, kyla och värme anpassas till högsta standard för att säkerställa ett komfortabelt och effektivt klimat i hela lokalen.

För er bekvämlighet finns även ett anslutande parkeringsgarage, förvaltat av EasyPark, där det finns möjlighet att hyra platser enligt gällande tariff.
I garaget finns dessutom nyrenoverade omklädningsrum och duschar - perfekt för anställda som cyklar till kontoret.

Den bifogade planlösningen är ett inspirationsförslag framtaget av arkitekt och kan enkelt anpassas efter era visioner och önskemål.

Tillträde sker enligt överenskommelse.

Observera att planlösningarna i annonsen är exempel och ska ses som inspiration på hur en färdigställd lokal kan utformas. Faktisk planlösning och antal arbetsplatser kan avvika från illustrationen.

Kontakta oss redan idag för att boka en visning och uppleva potentialen i denna fantastiska kontorslokal!

Omgivning

Omgivning/natur:

Lokalen erbjuder ett oslagbart läge i centrala Stockholm, med närhet till allt som citykärnan har att erbjuda. Här befinner ni er i ett av huvudstadens mest attraktiva och dynamiska områden, där pulsen från city kombineras med praktiska lösningar för både arbete och vardag.

I närområdet finns ett brett utbud av service och bekvämligheter som förenklar arbetsdagen. Här hittar ni allt från välrenommerade restauranger och mysiga caféer till träningsanläggningar och butiker. Med några minuters promenad når ni Drottninggatan och Sergels Torg med shopping, banker, apotek och all tänkbar service.
Vill man ta en paus från kontoret är både Humlegården samt Kungsträdgården och vackra promenadstråk längs Klara sjö utmärkta alternativ för en avkopplande stund.

Parkeringsmöjligheter/garage:

Parkeringsmöjligheter inom området.
Garage finns i huset.

Planlösning

Byggår:

1987

Våningsplan:

4

Kommunikationer

Lokalen är strategiskt placerad med utmärkta kommunikationsmöjligheter.
Centralstationen och Cityterminalen ligger bara en kort promenad bort, vilket ger enkel tillgång till pendeltåg, tunnelbana, fjärrtåg, bussar och Arlanda Express.
Närmaste tunnelbanestation är T-Centralen, där samtliga linjer passerar, vilket gör det smidigt för medarbetare och kunder att ta sig till och från lokalen oavsett varifrån de reser.

Övrigt

Tillträde:

Enligt Överenskommelse

Kontakta Annonsör

Jesper Lind

Jesper Lind