Färgargårdstorget 1
Södermalm, Stockholm, 626 m2
Välkommen till Färgargårdstorget 1, en rymlig och ljus lokal med 626 kvm stora möjligheter för många typer av verksamheter. Lokalen...
Butik/Kontor, 52 m2, Stockholm, Södermalm
Hyra: 4 150 /m²/år
Trevlig kontorslokal på Katarina Bangata 29 med ett fantastiskt läge mitt på Södermalm. Här finns både Nytorget och Götgatan i omedelbar närhet samt ett vältrafikerat läge med tillgång till restauranger, caféer och servicehandel. Området erbjuder både goda parkeringsmöjligheter samt bra kollektivtrafik.
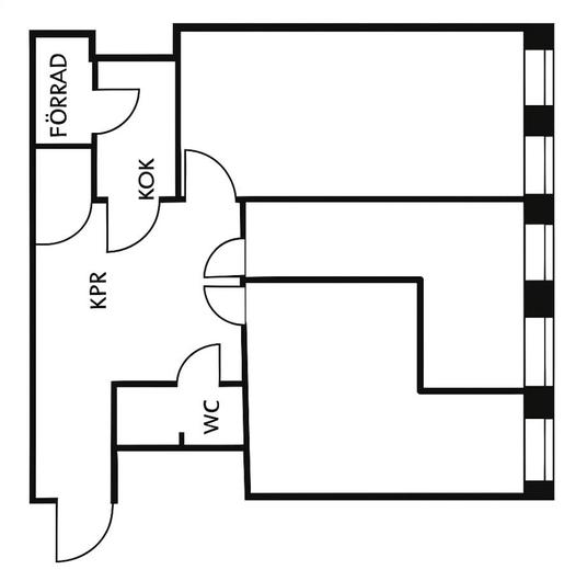
Fin och välplanerad kontorslokal en och en halv trappa upp med trevligt ljusinsläpp från fönster som vetter mot Katarina Bangata. Lokalen disponeras med tre separata rum, pentry, wc och en välkomnande hall.
Lokalen används idag som kiropraktikmottagning men lämpar sig även bra som en trevlig kontorslokal där man uppskattar rumsindelningen och läget.
Hyresvärd: Fastighetsbolag
Hyra: 17 982 kr / månad exkl. moms
Fastighetsskatt: 1 575 kr / månad exkl. moms
Hyresgaranti: Deposition
Yta: 52kvm
Överlåtelse: 100 000 kronor
Nextor Group
Anders Ölve
Telefon: 076 340 11 11
Mail: [email protected]
100 000
Utgångshyra kr/m2/år:4150